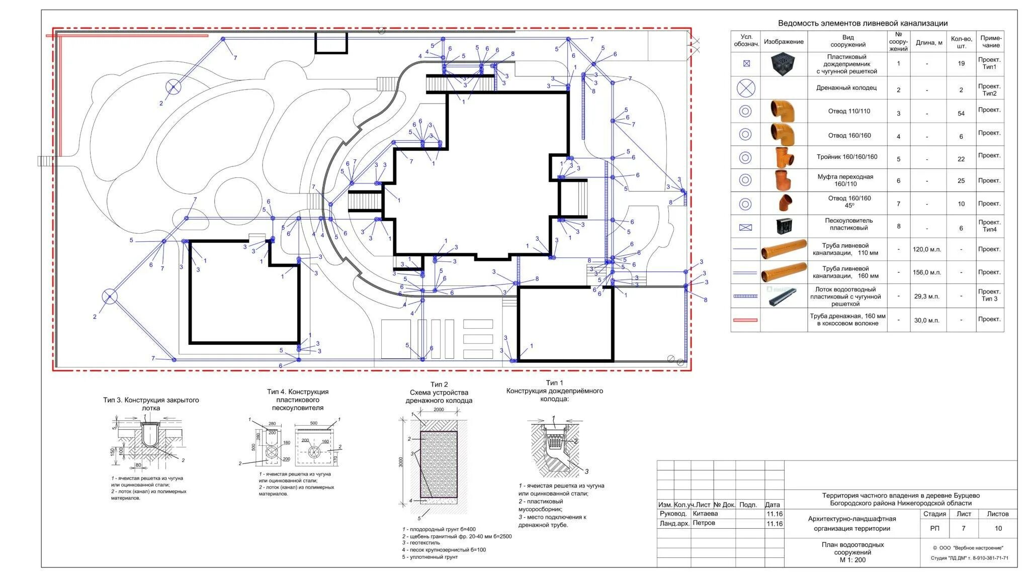
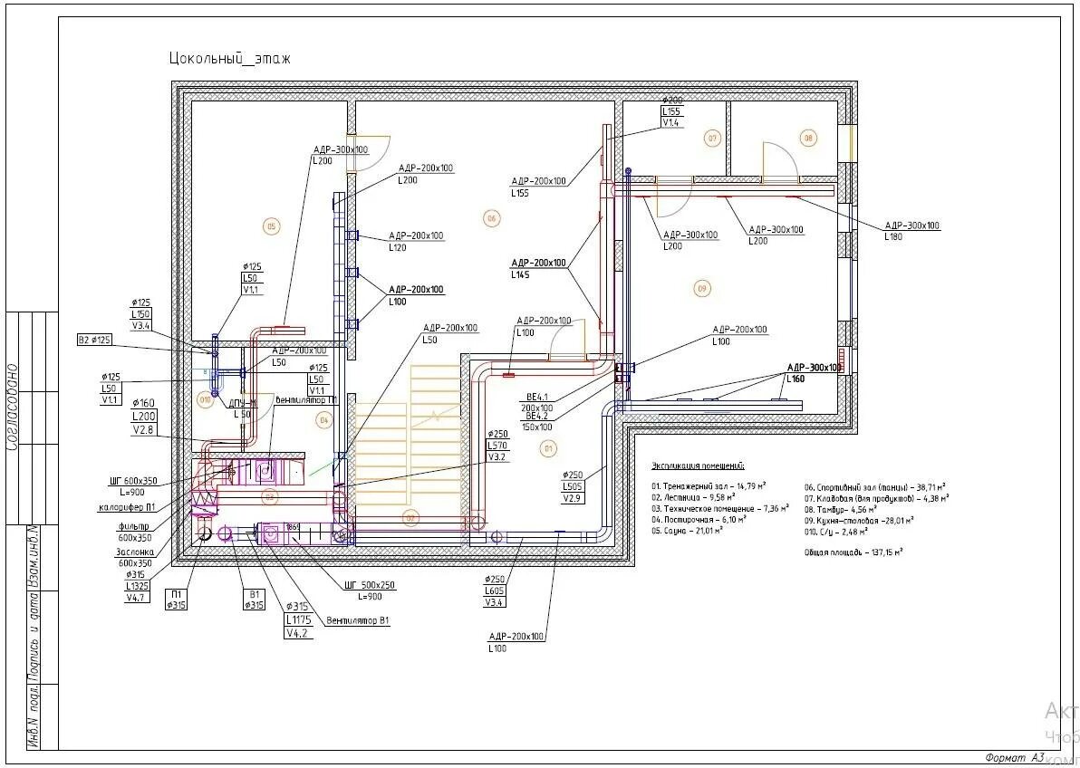
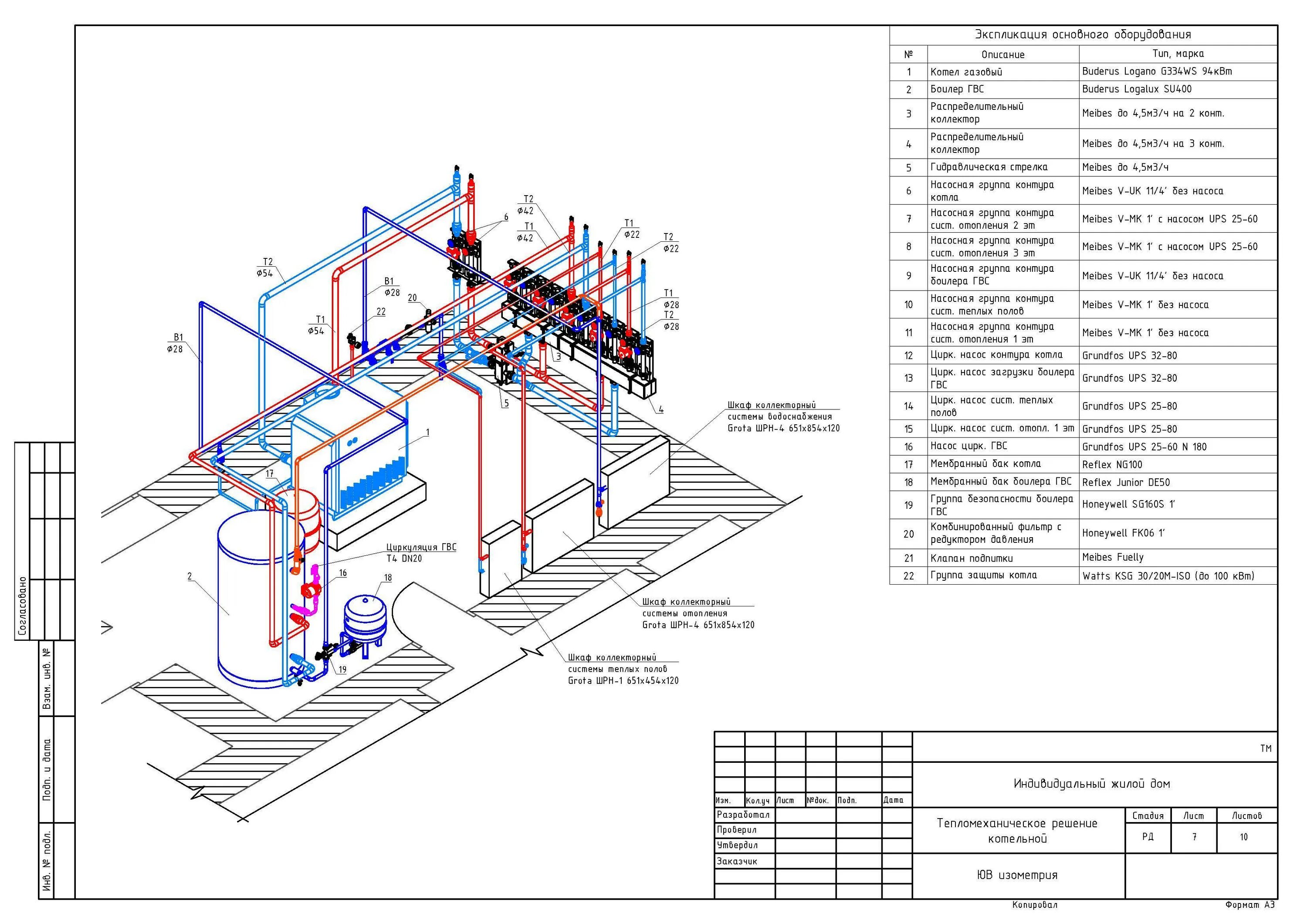
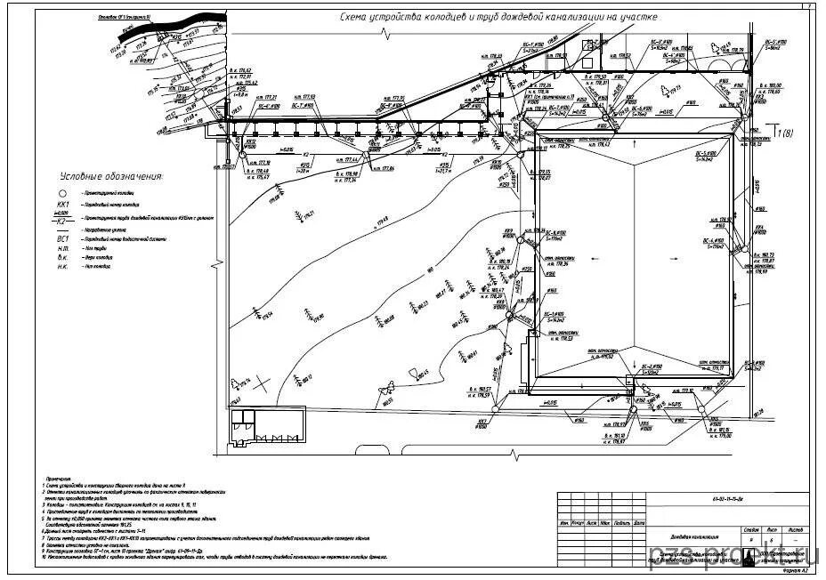
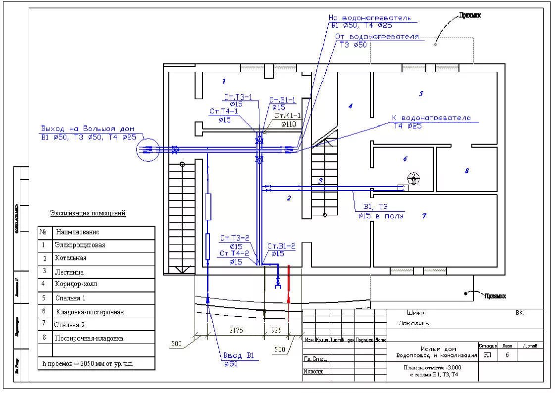
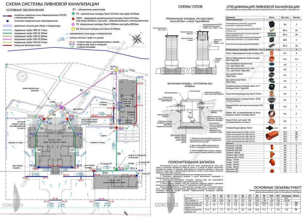
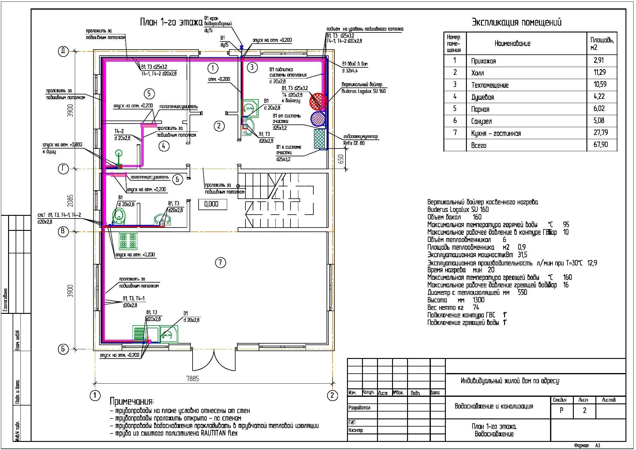
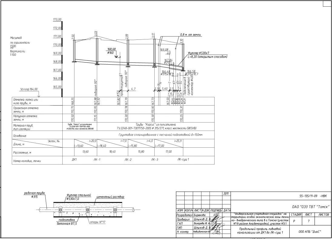
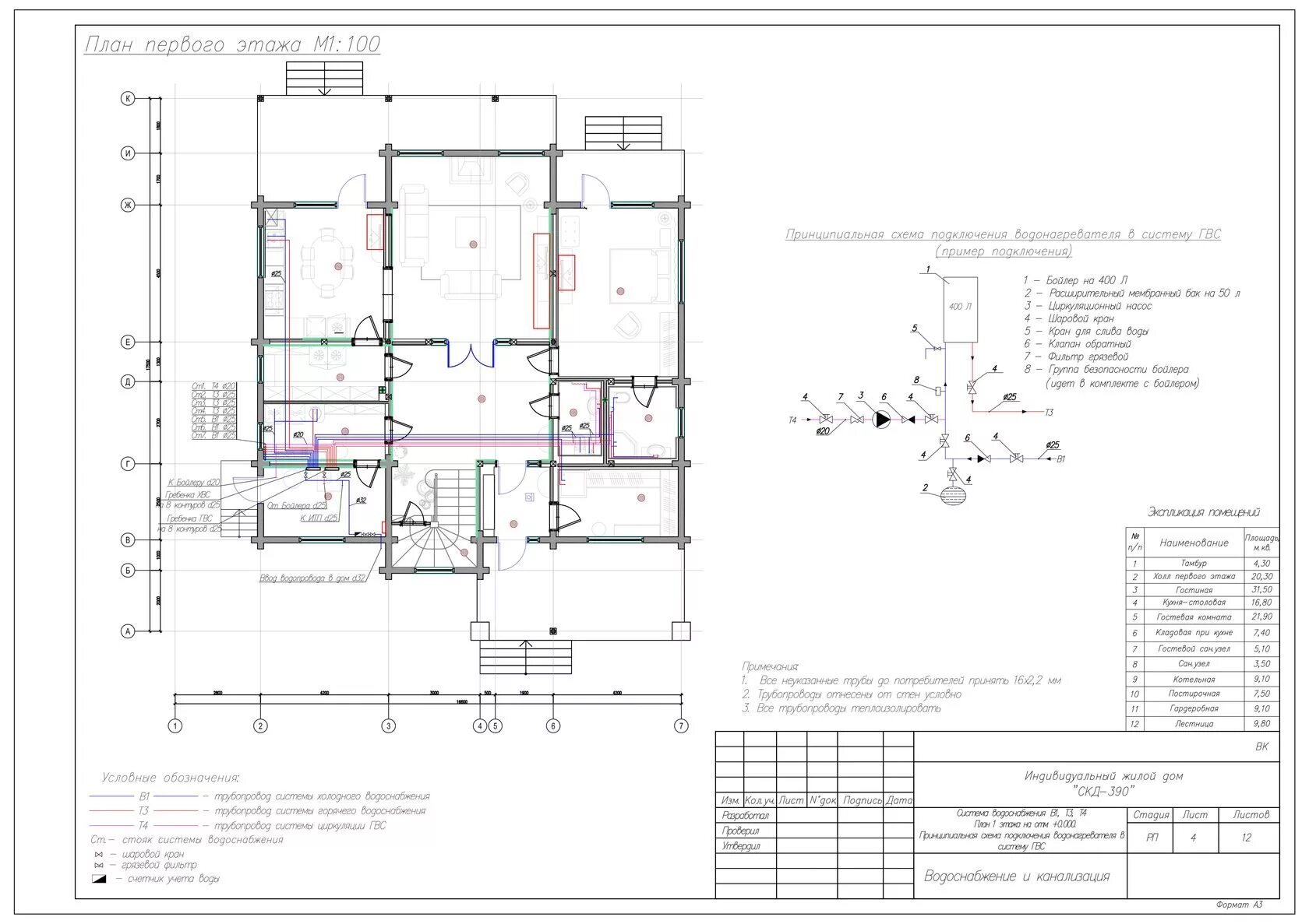
Пример проекта канализации