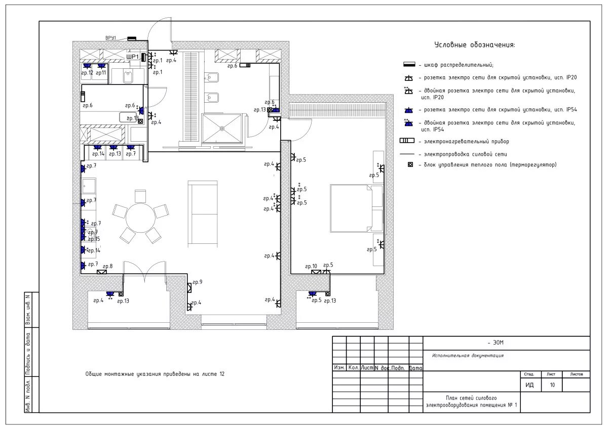
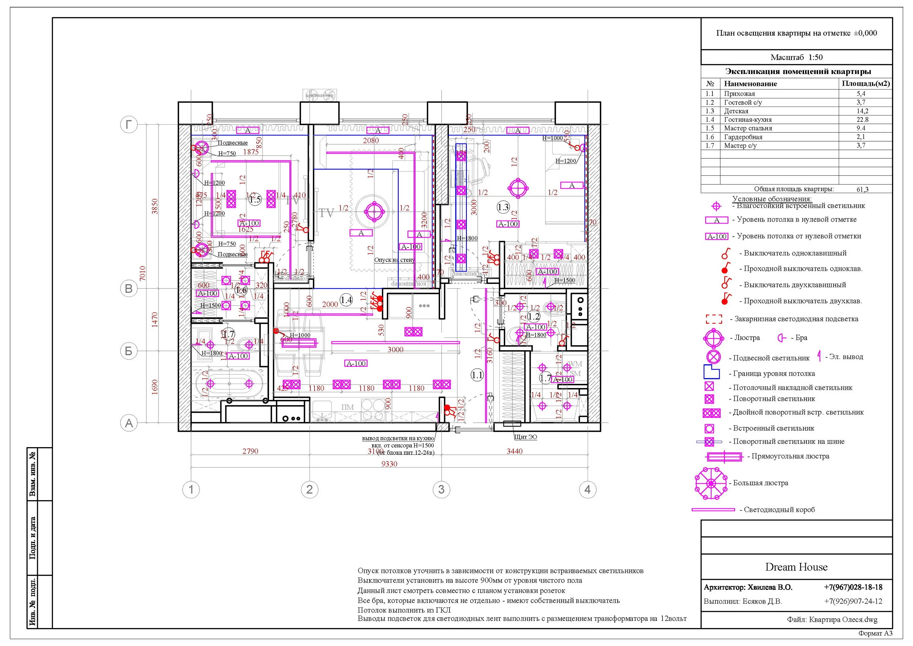
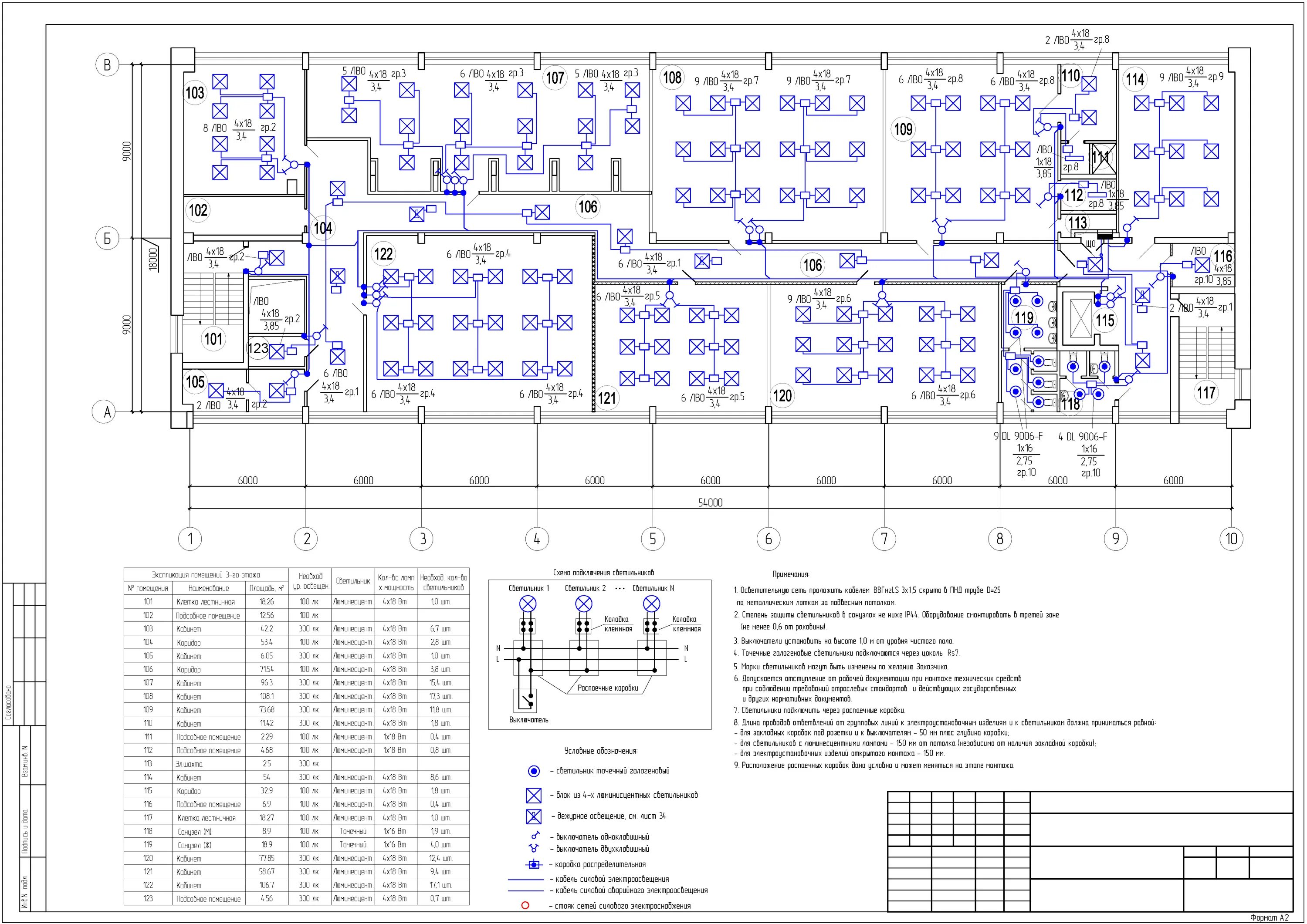
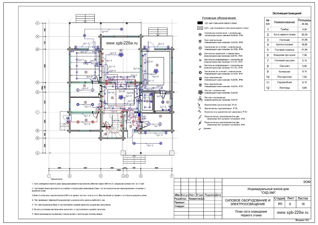
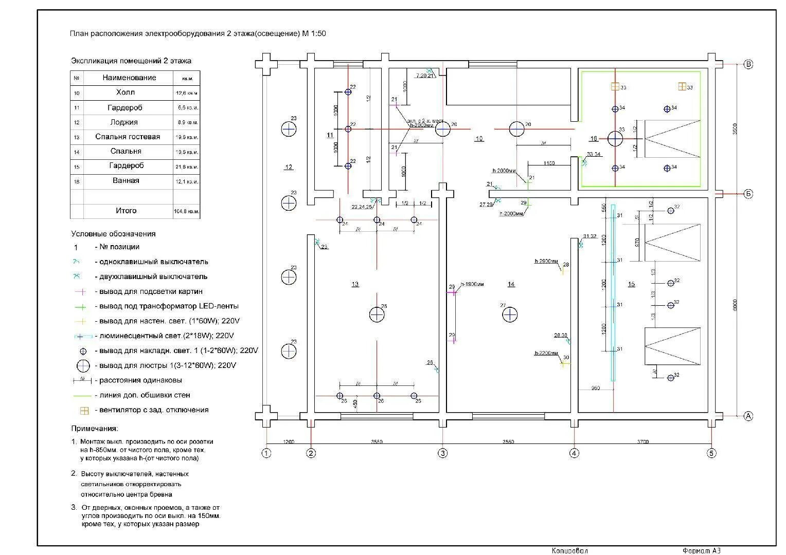
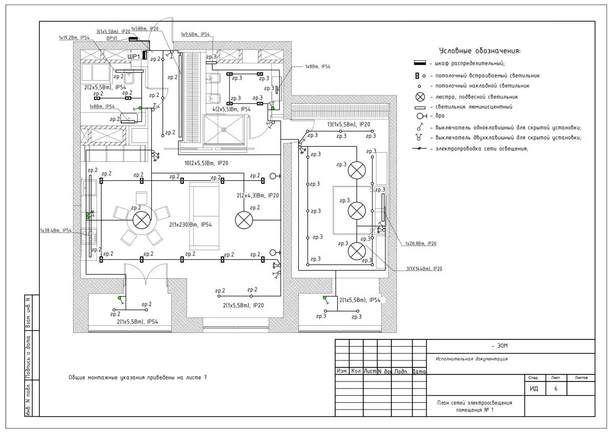
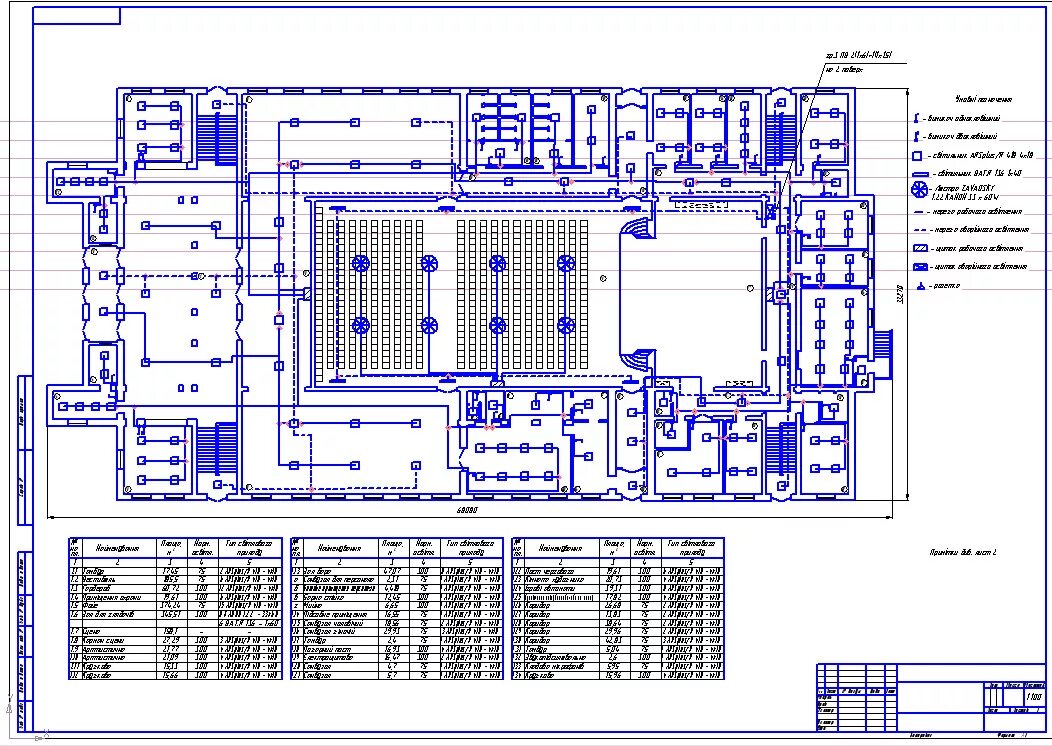
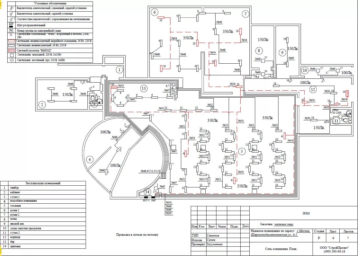
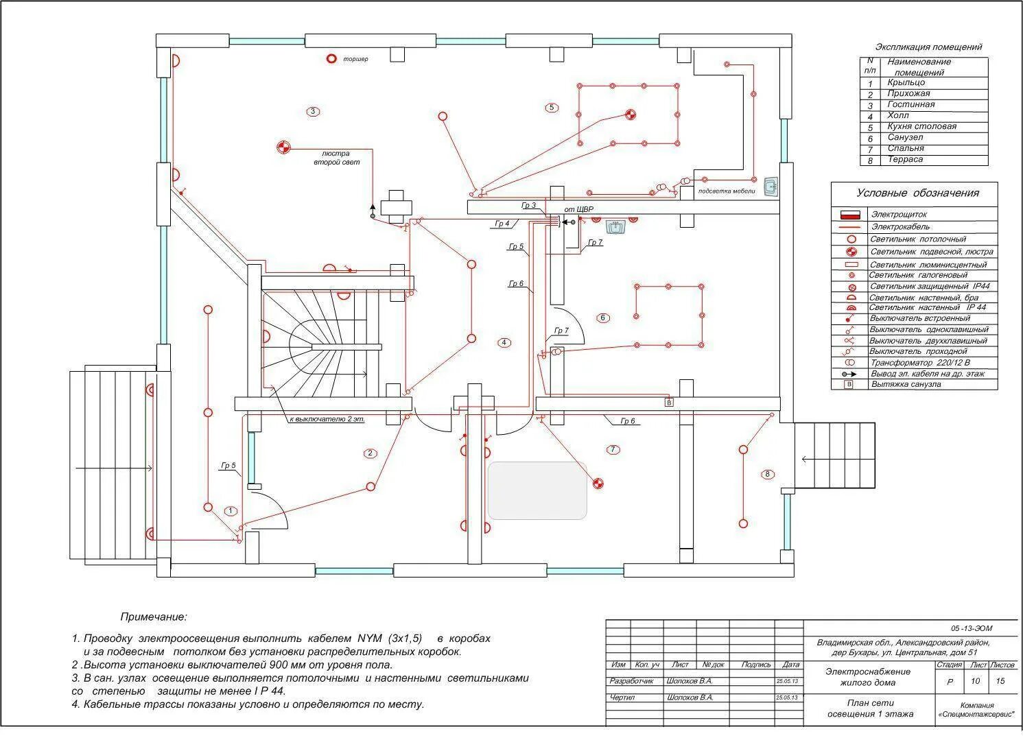
Пример проекта освещения