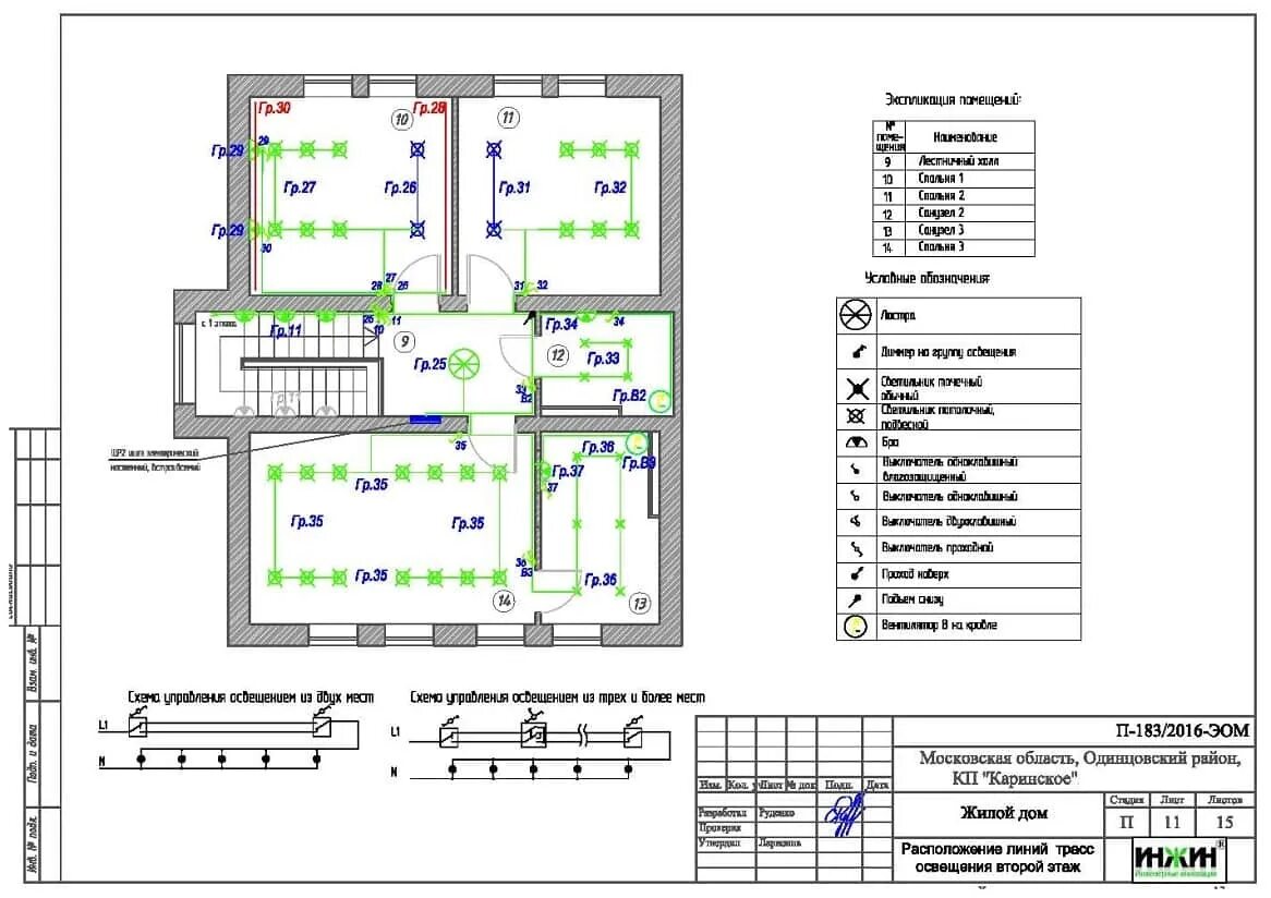
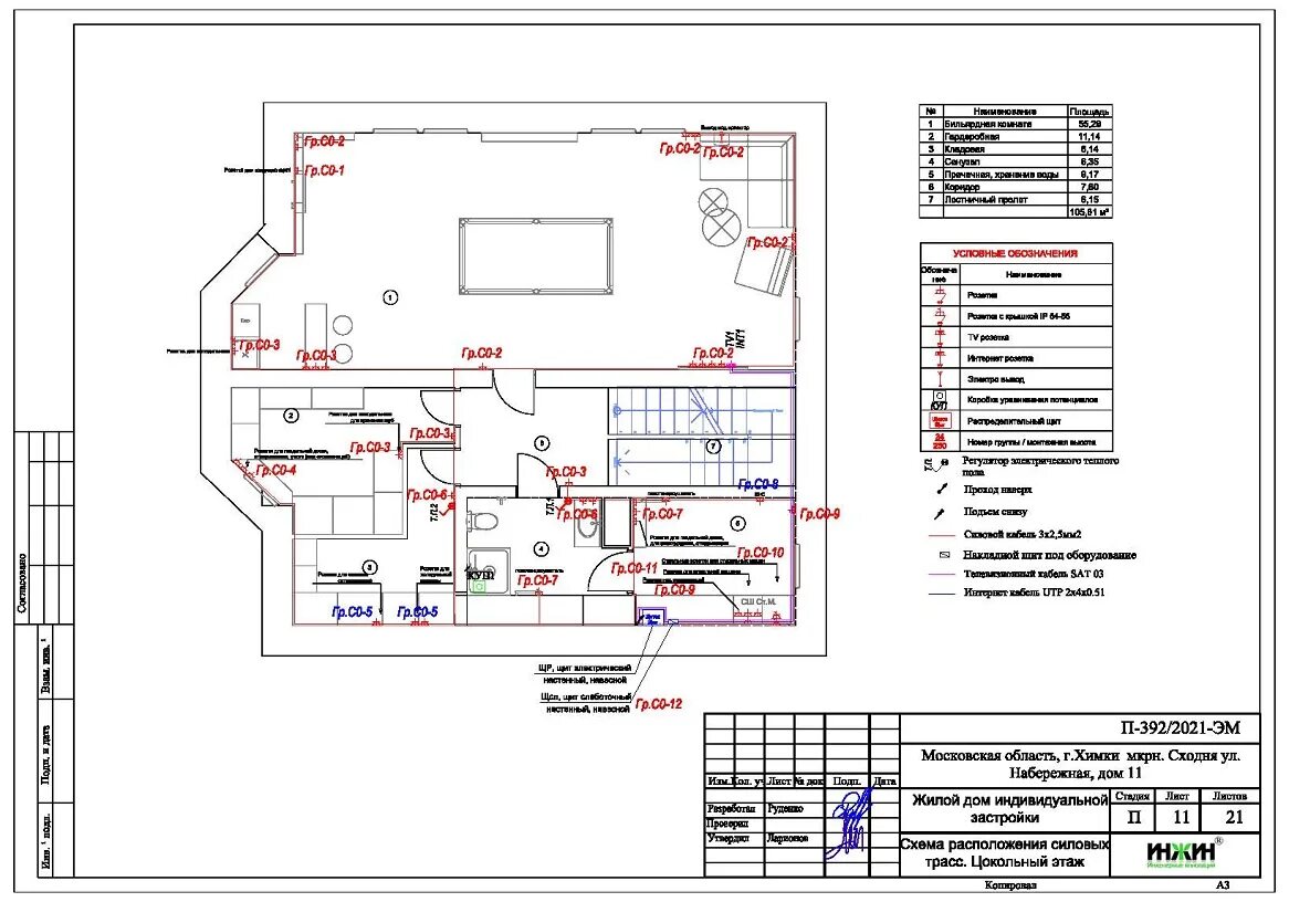
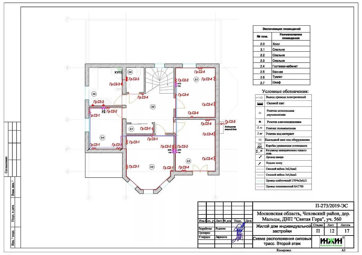
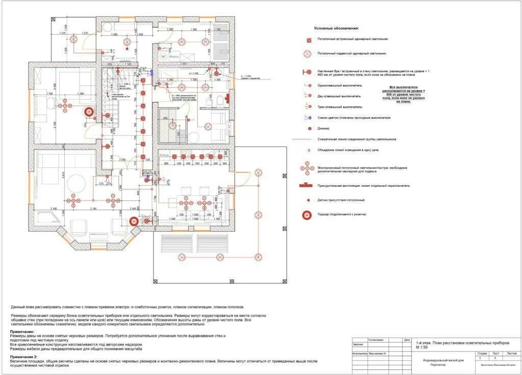
Пример проекта под