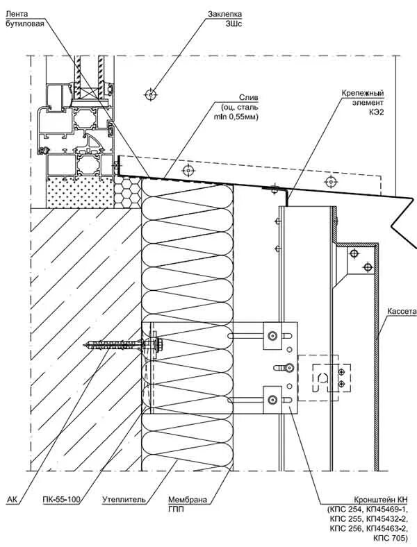
Примыкание пвх