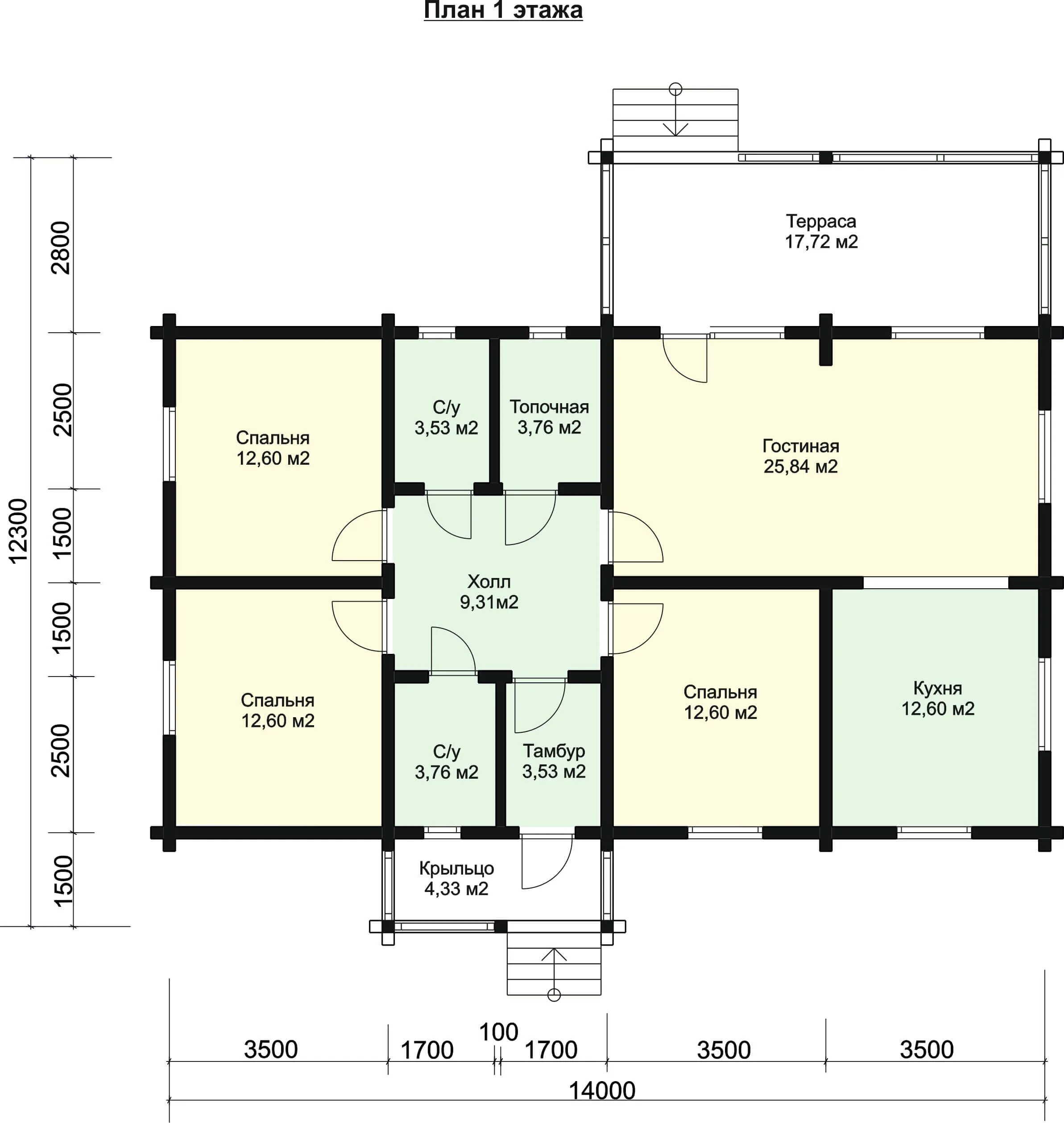
Проект 14 50