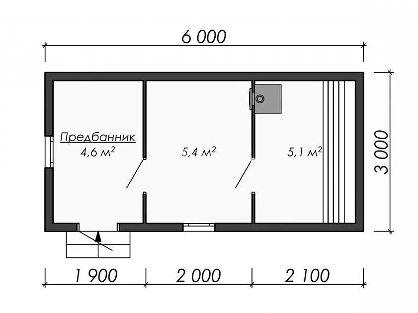
Проект бани 3 на 6