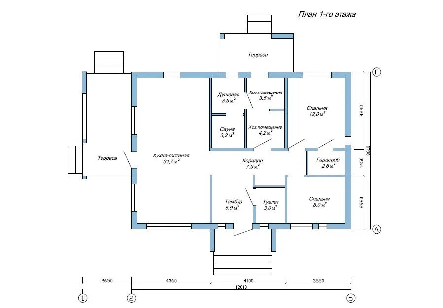
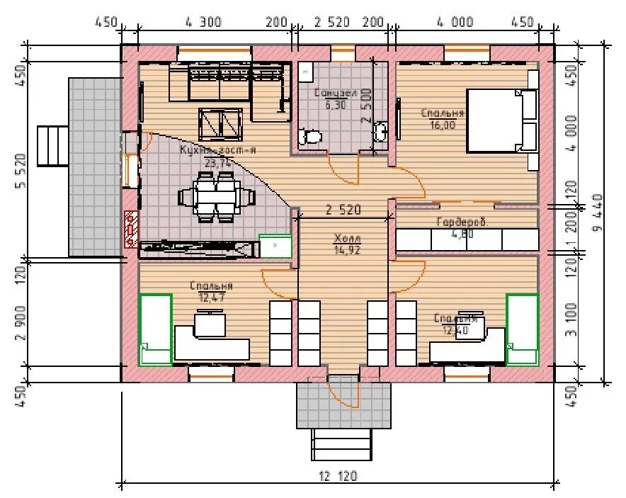
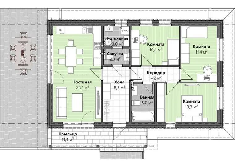
Проект дома 90 кв