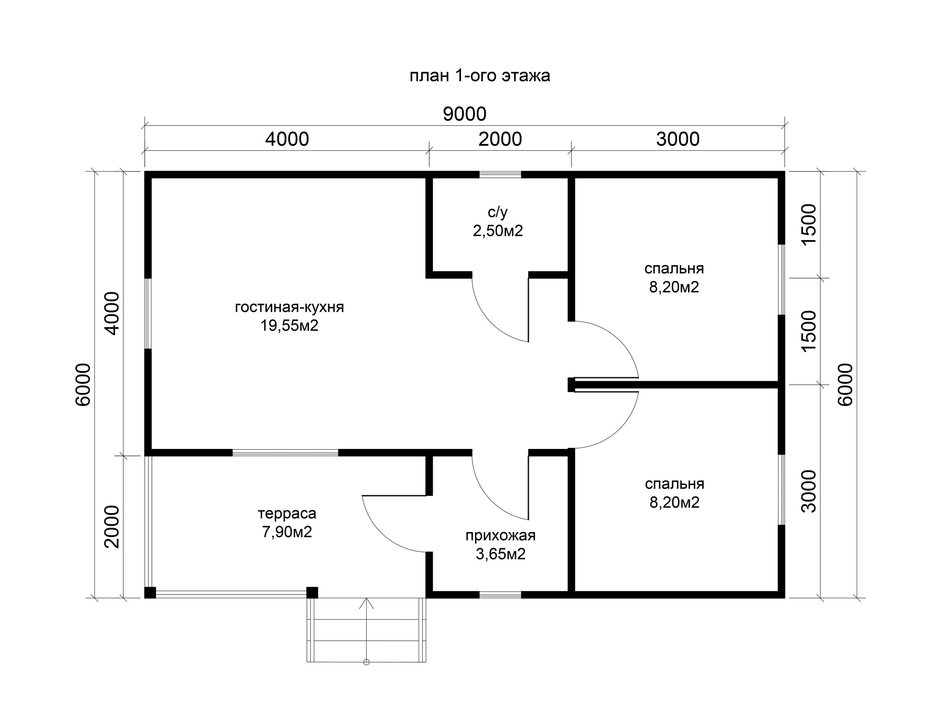
Проект дома каркасные дома 8 9