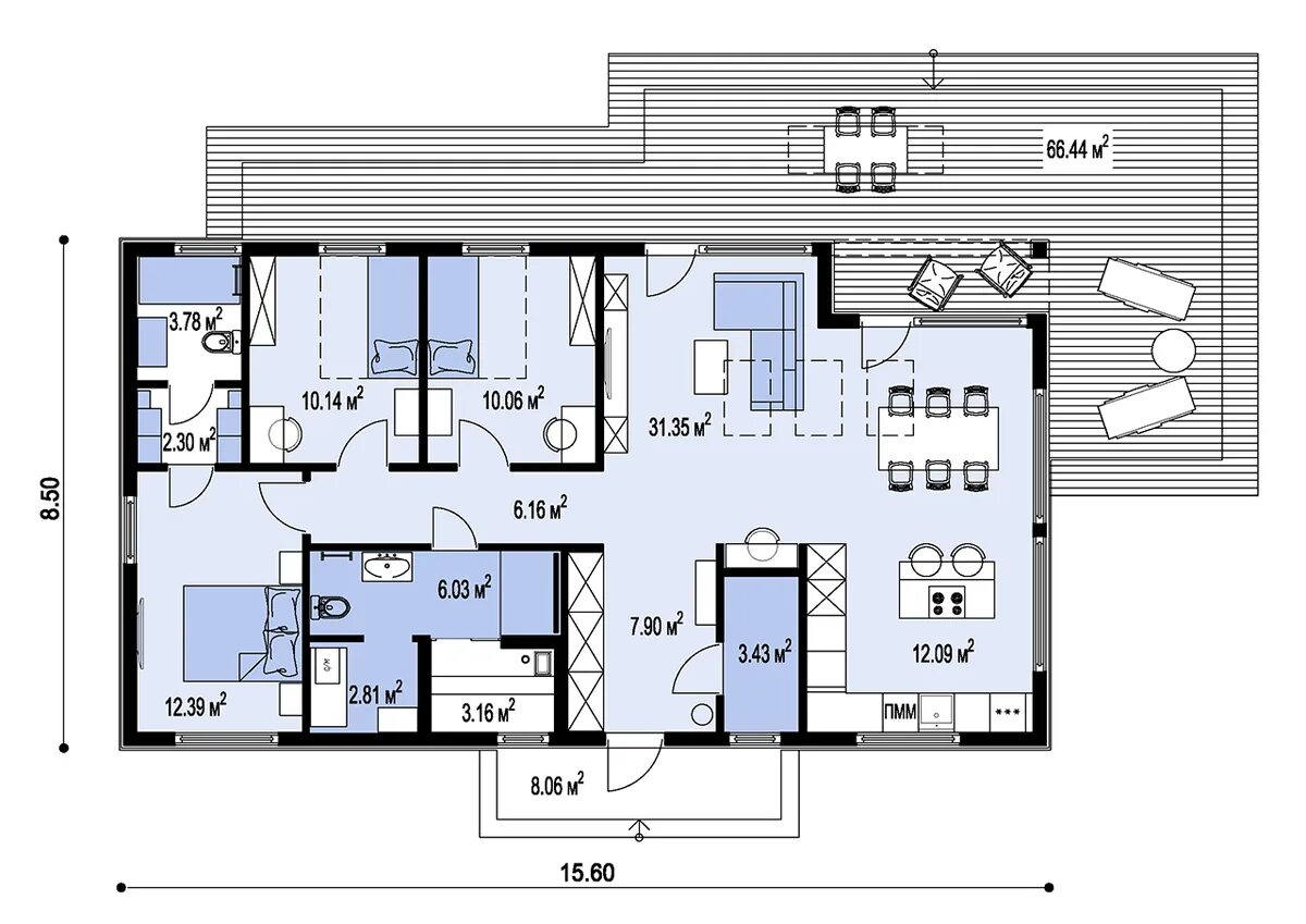
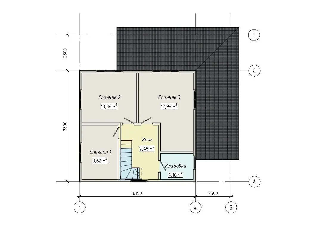
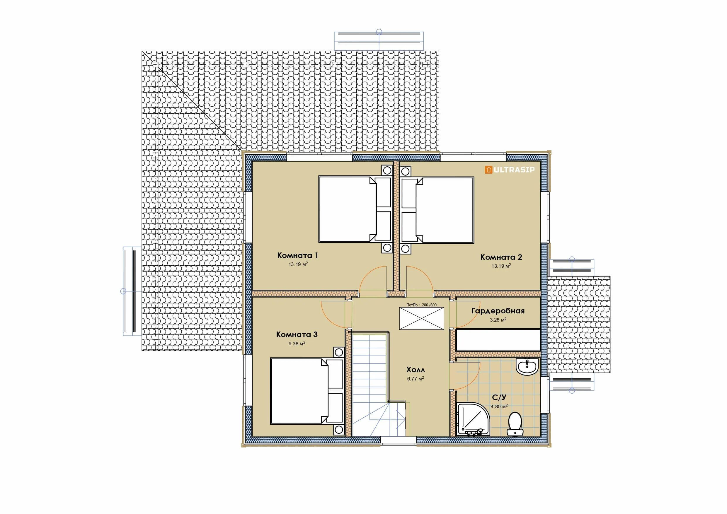
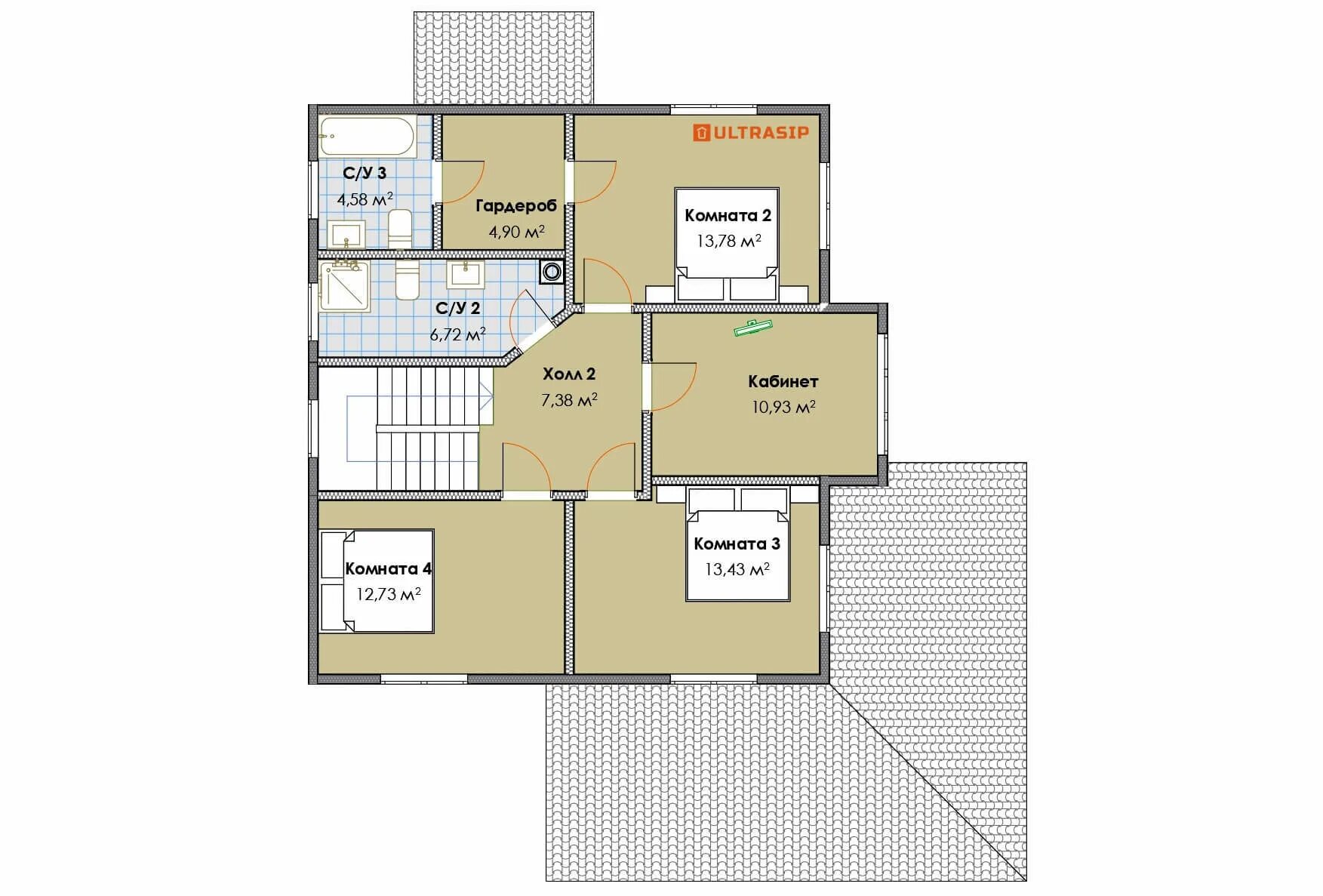
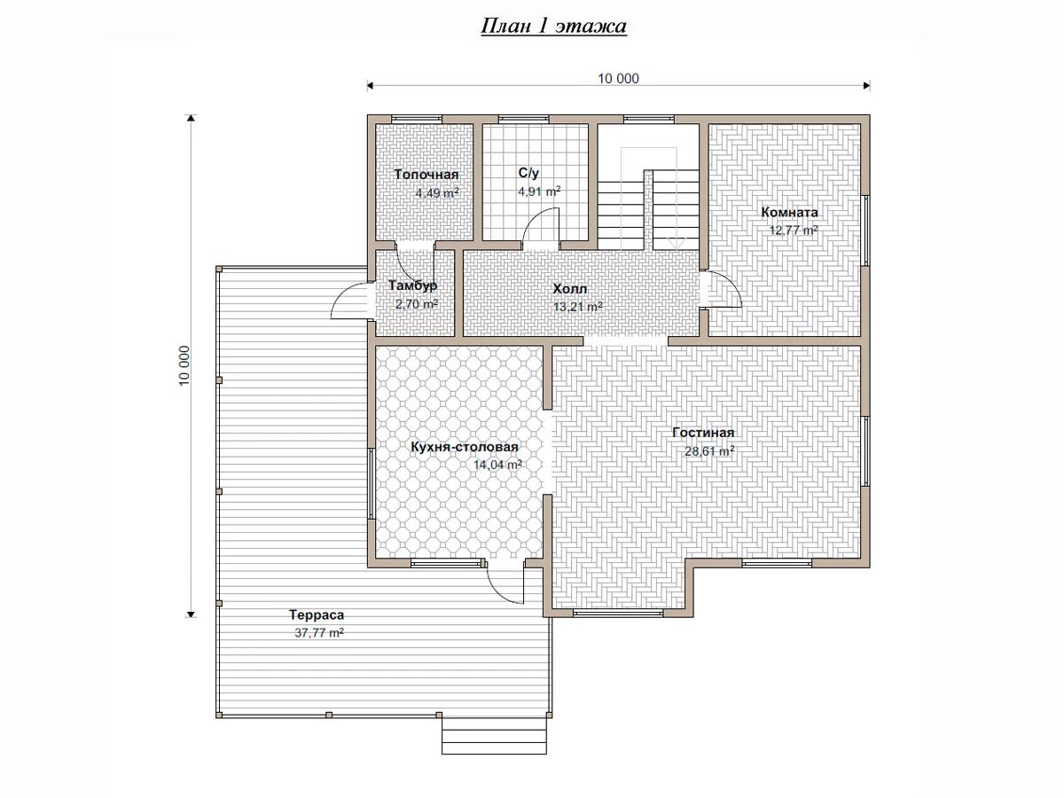
Проект оптимум