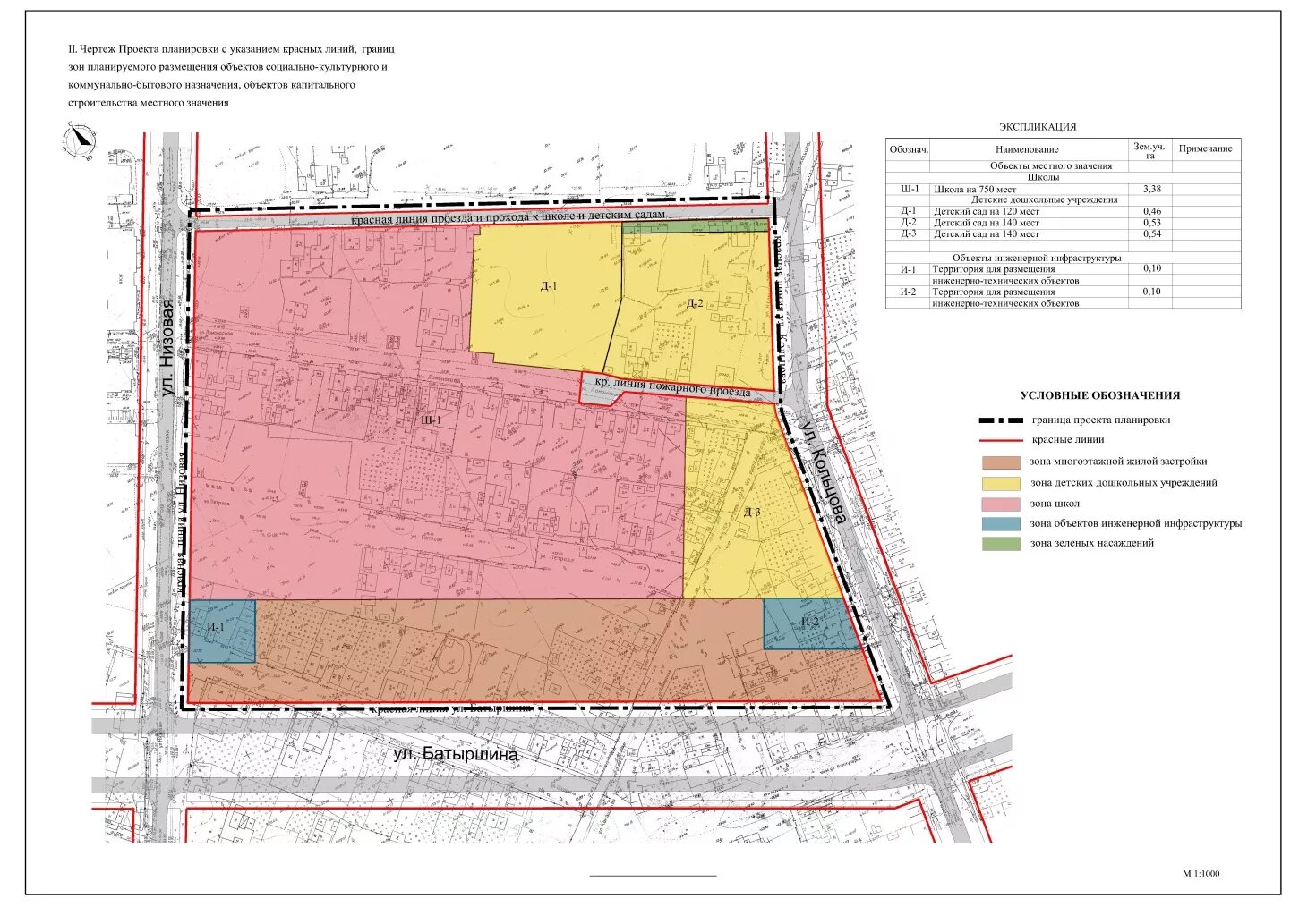
Проект планировки территории задание