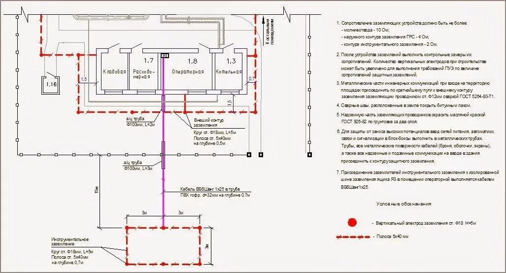
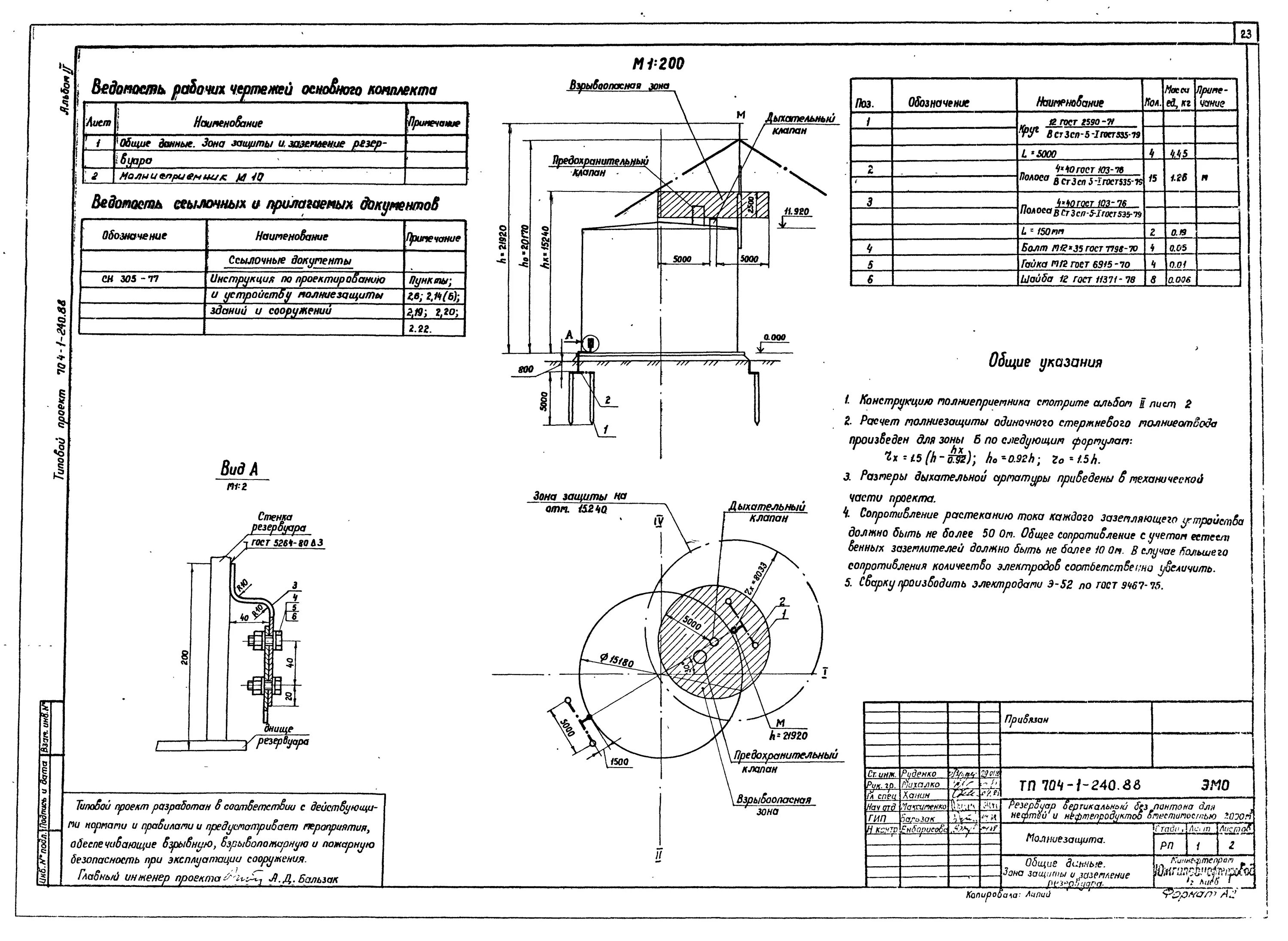
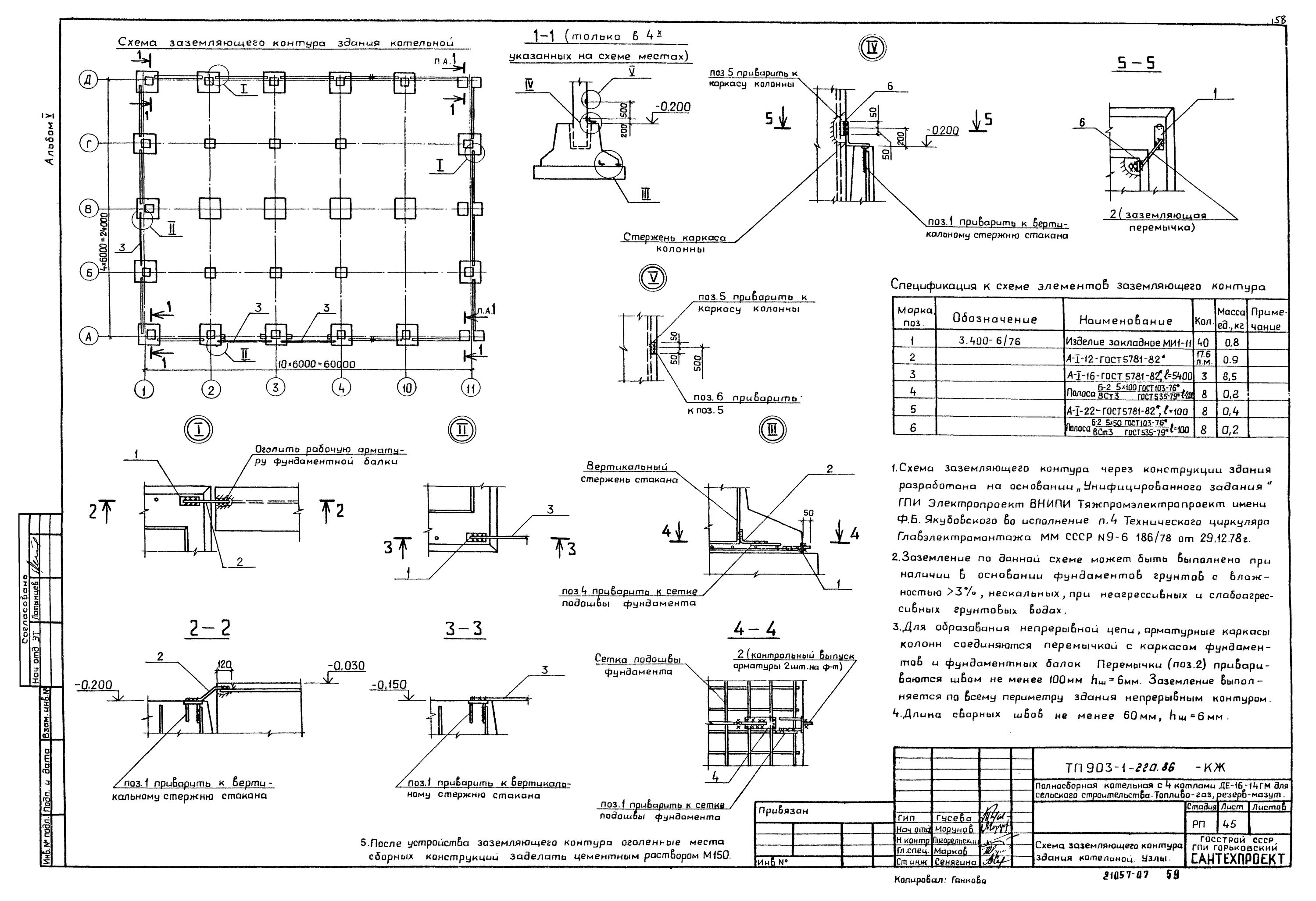
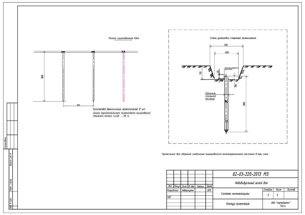
Проект заземления