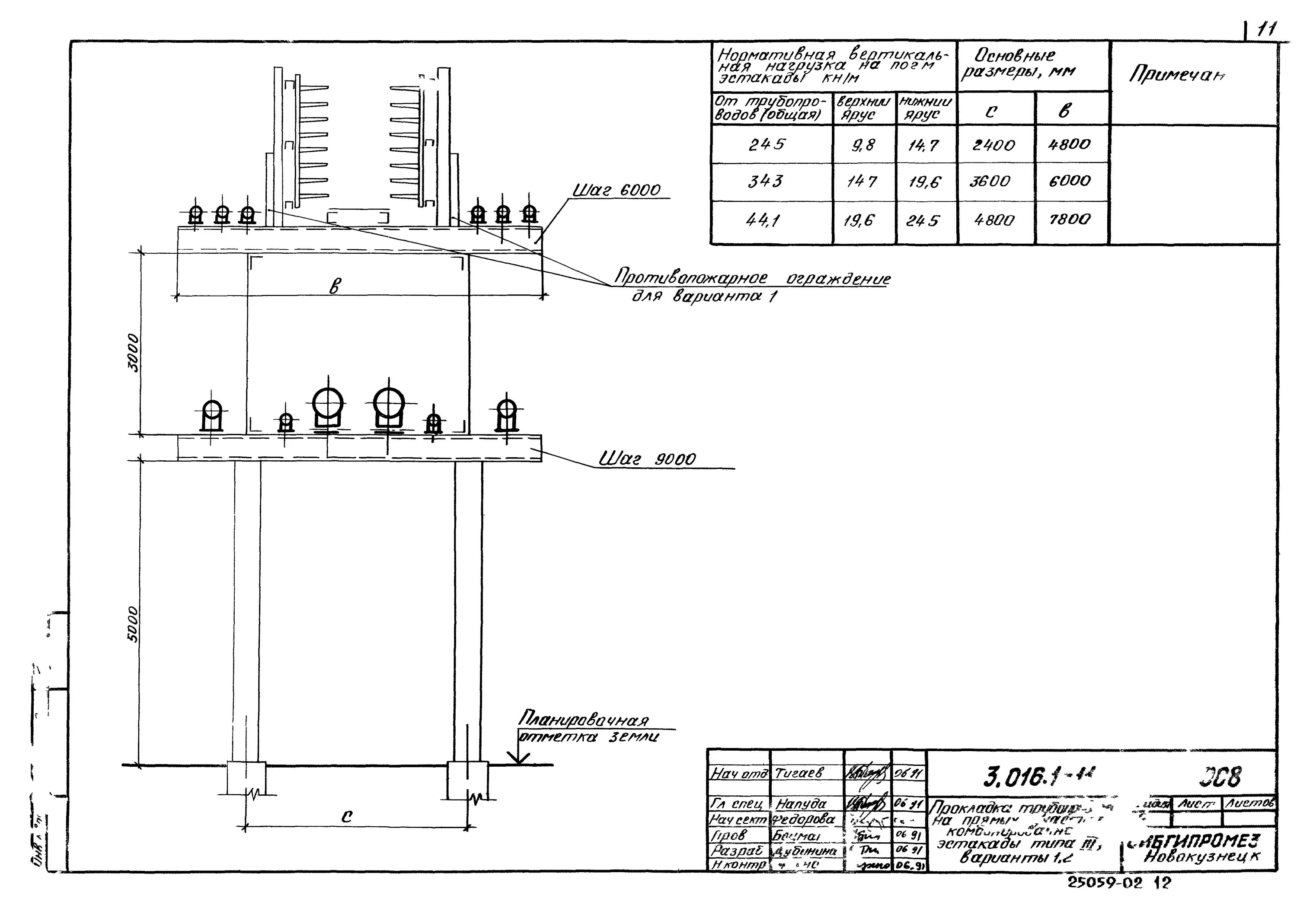
Проектирование эстакады под трубопровод