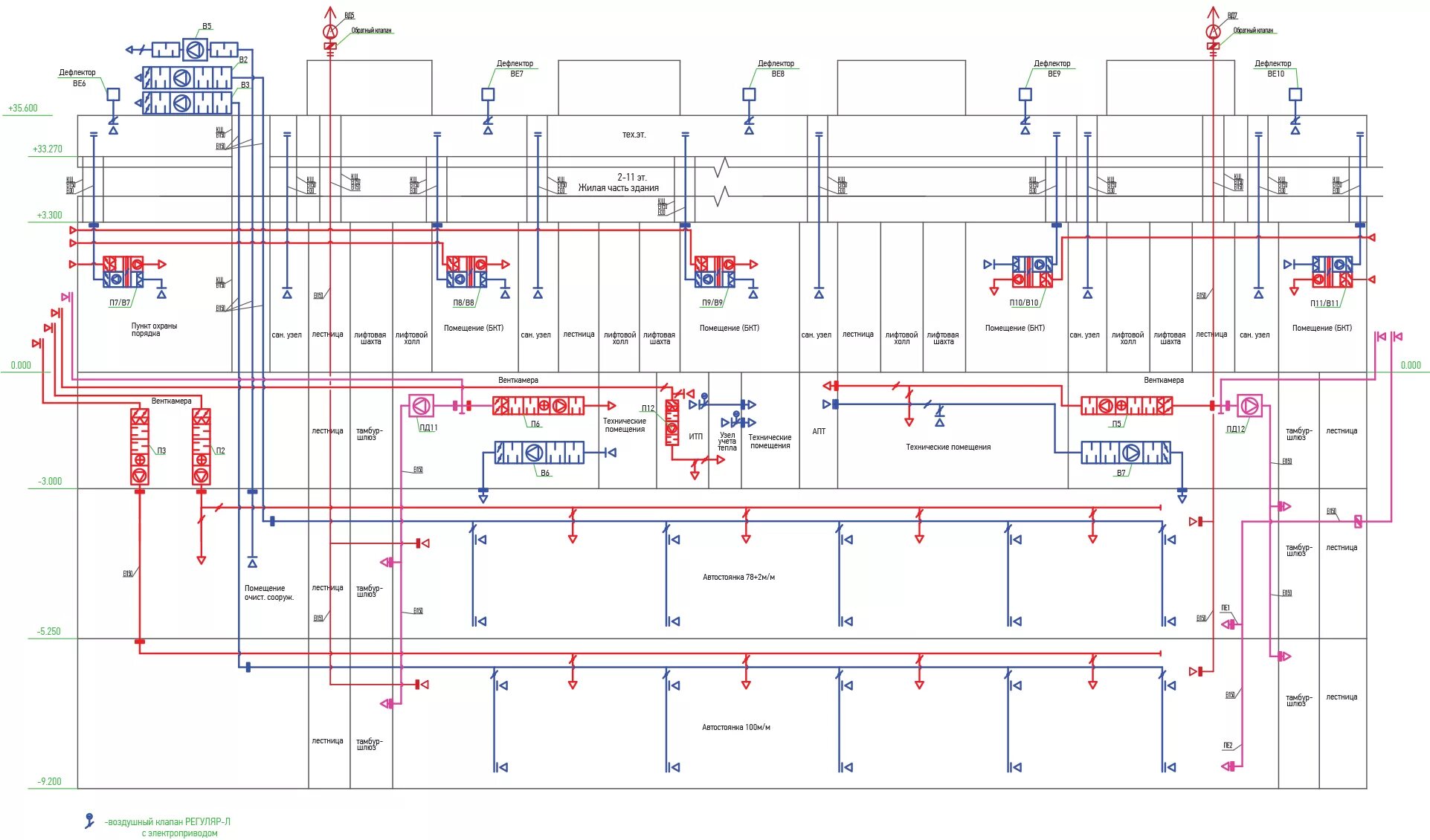
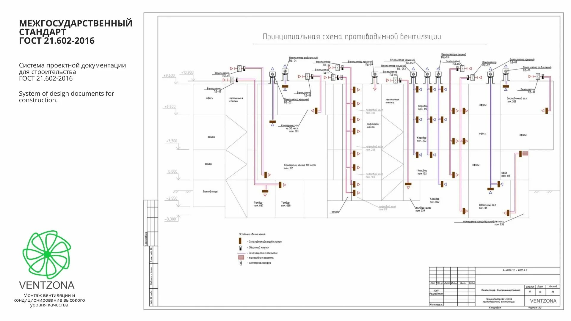
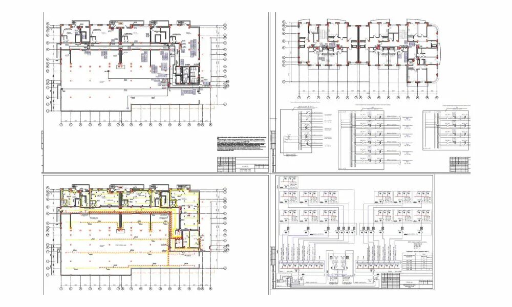
Проектирование противодымной вентиляции