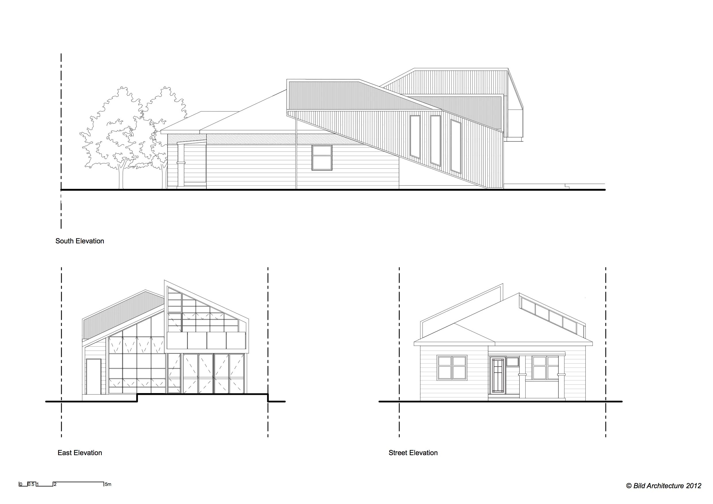
Проекция дома