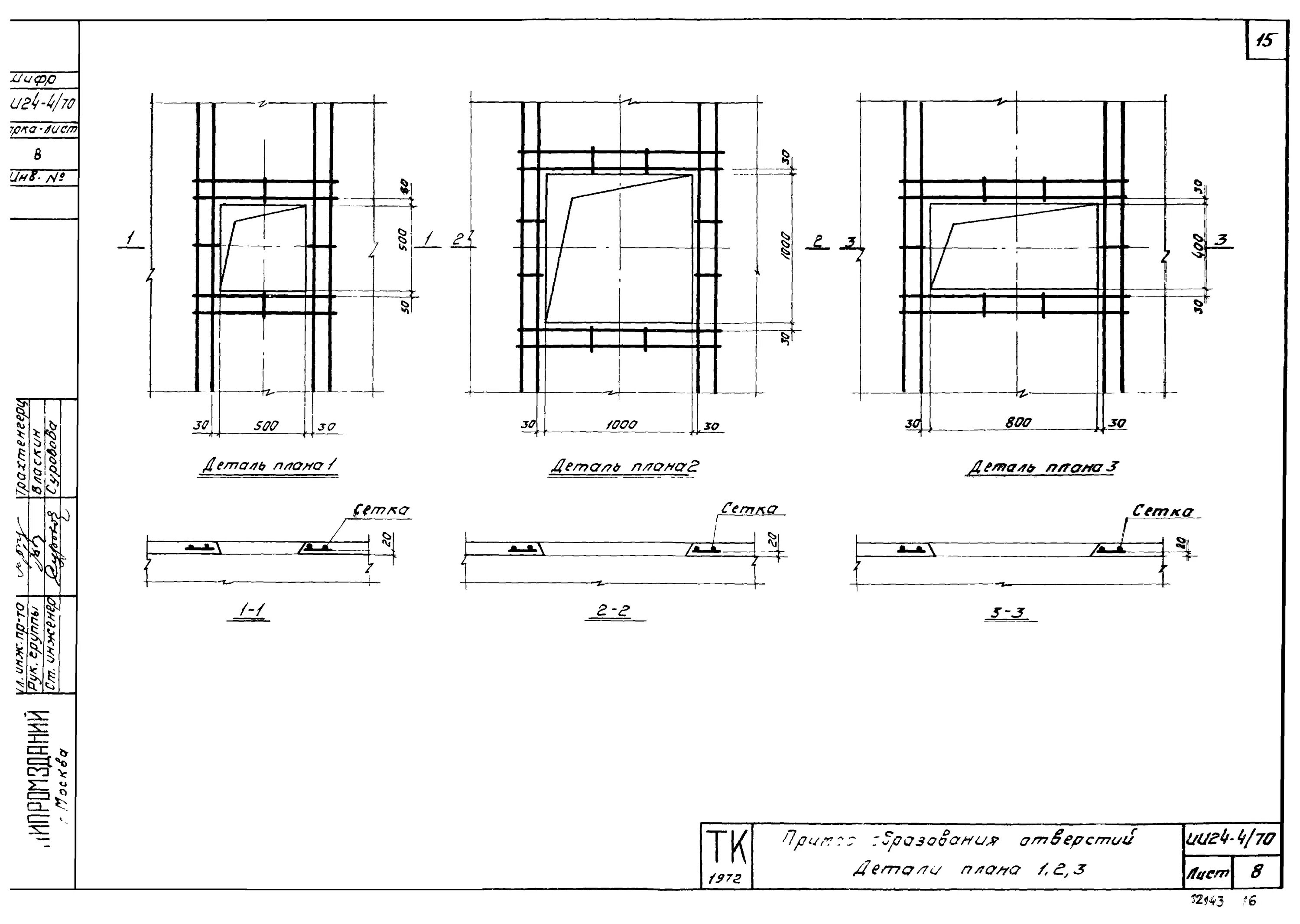
Проем в плите