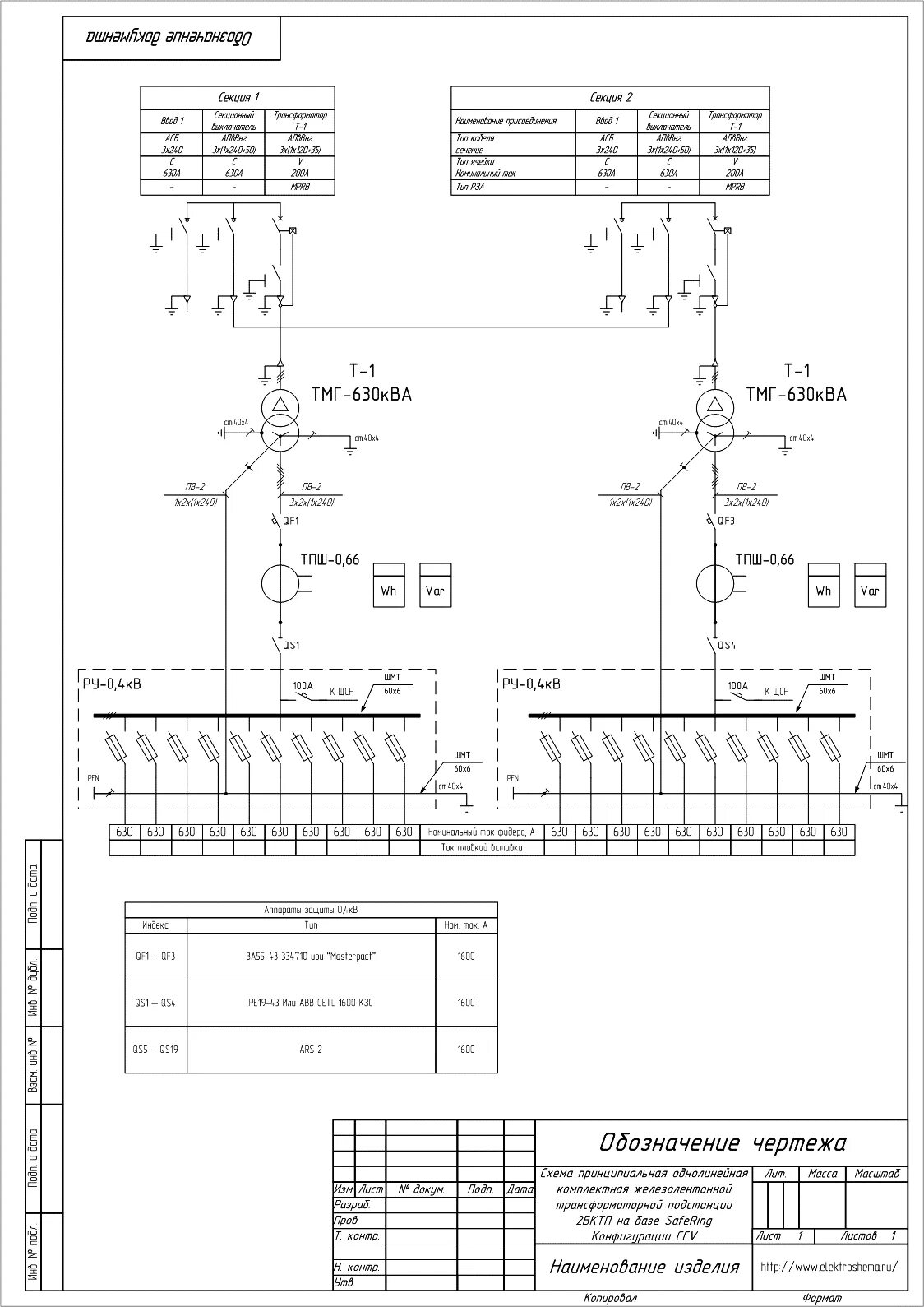
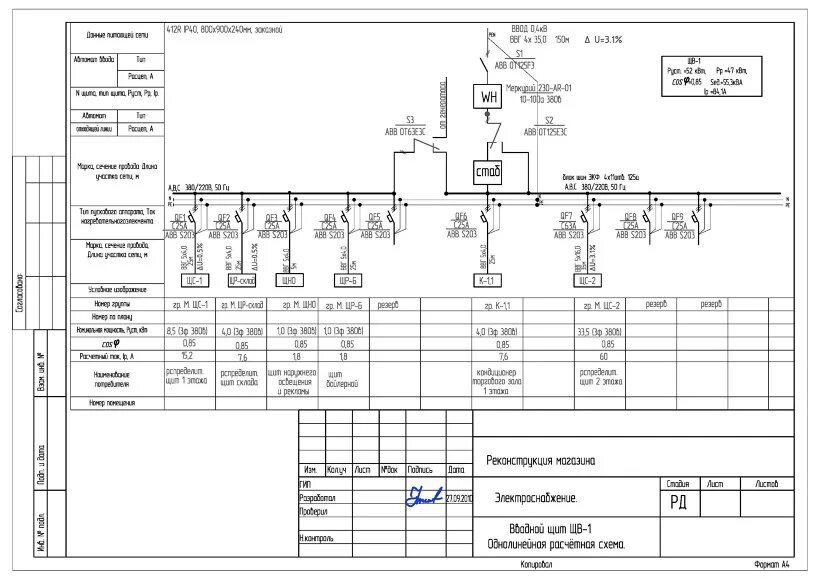
Программа составления однолинейных