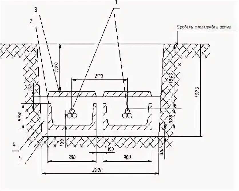
Прокладка кабеля в траншее проект