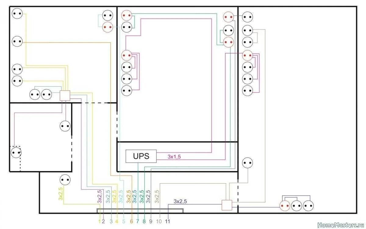
Проводка 2