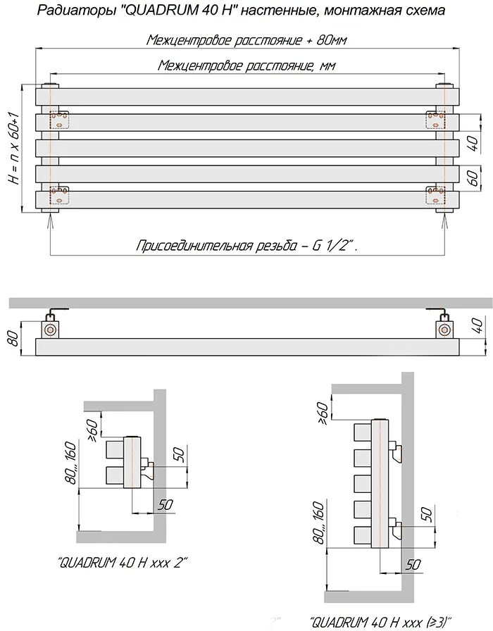
Quadrum 40 h