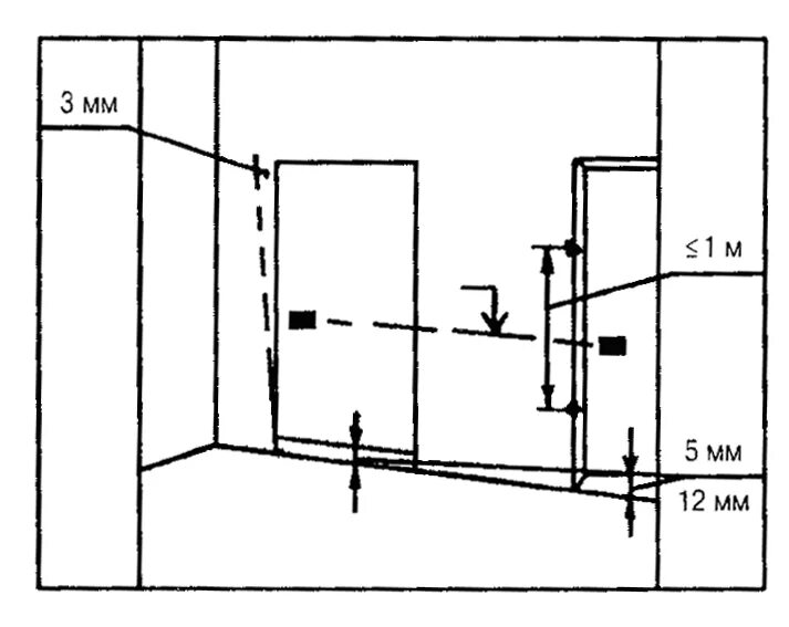
Расстояние между дверьми