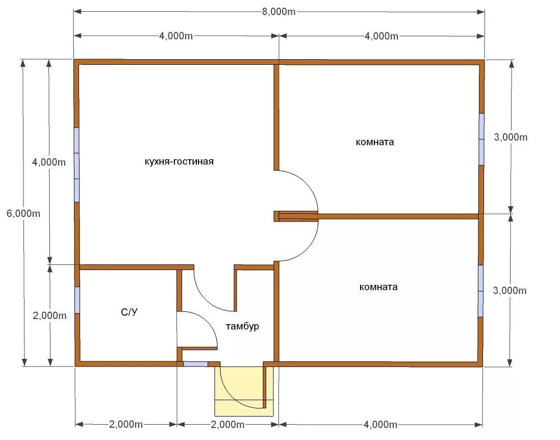
Размер дачного дома