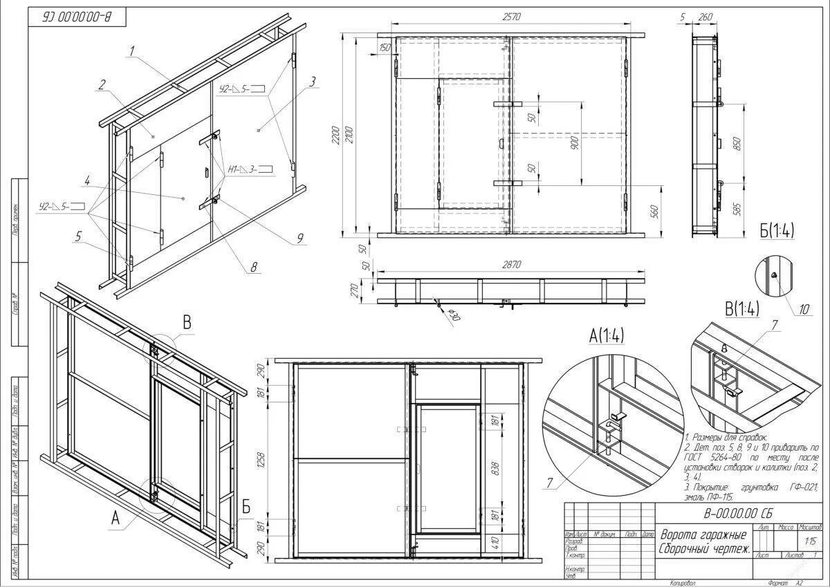
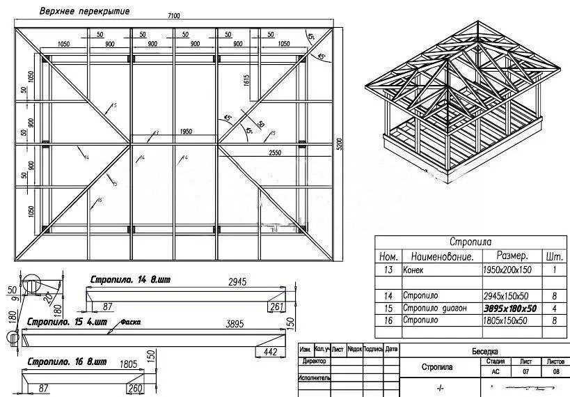
Размер конструкции