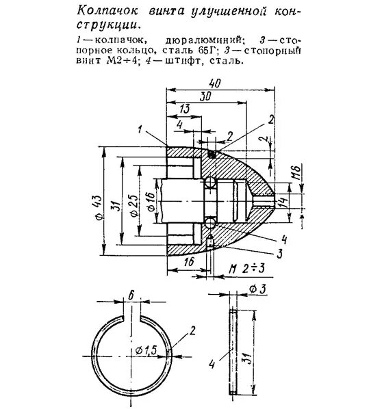
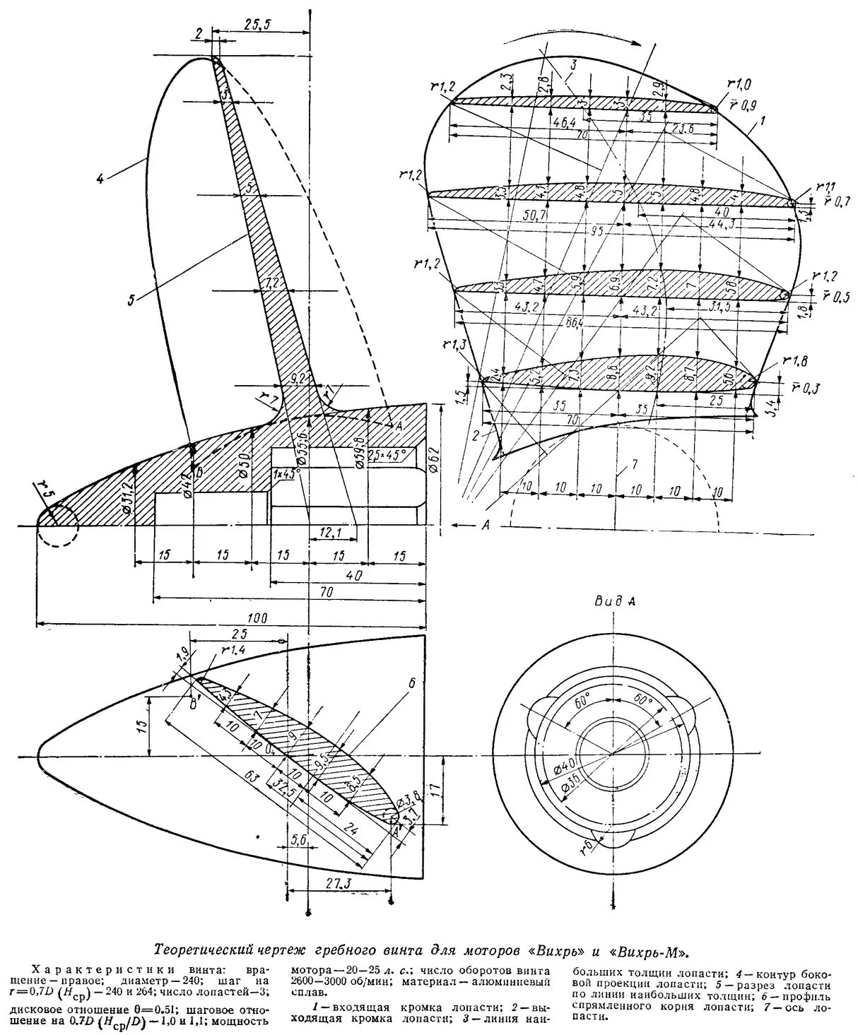
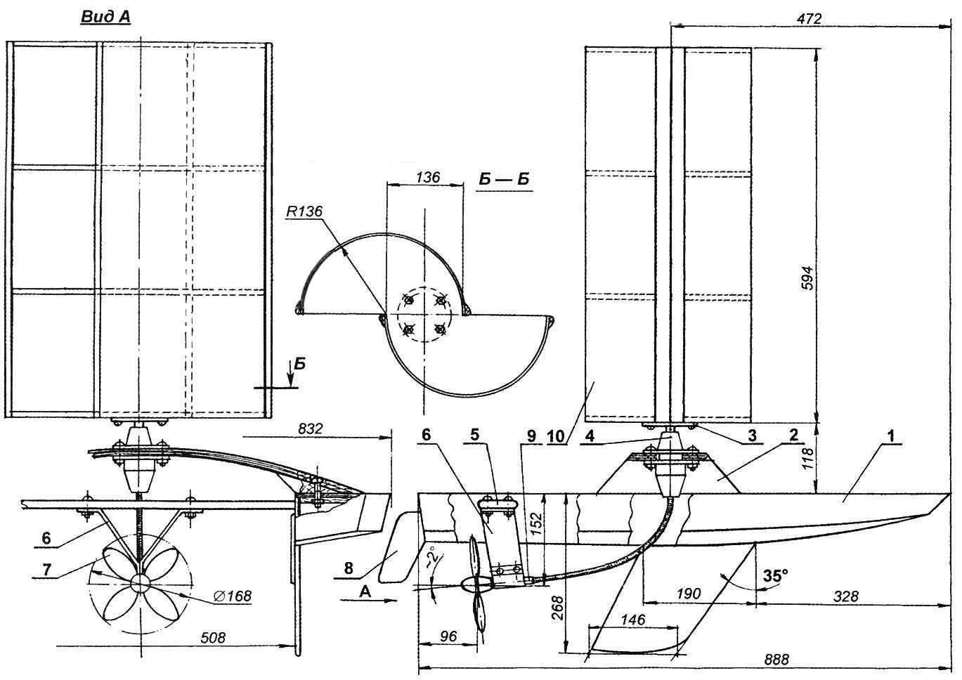
Размер лодочного винта