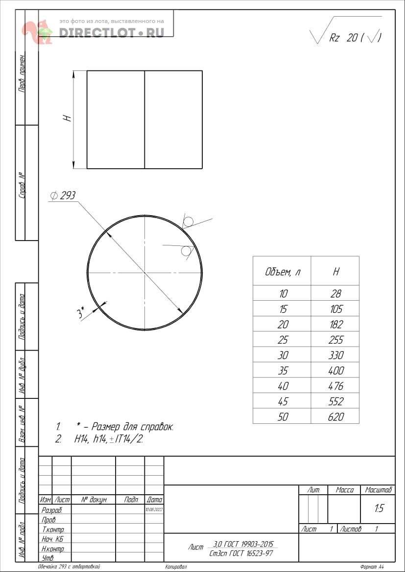
Размер обечайки