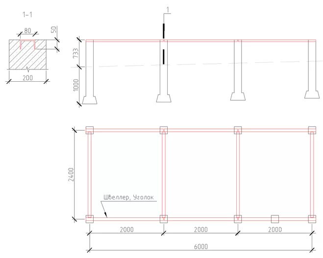
Размер столбы фундамента