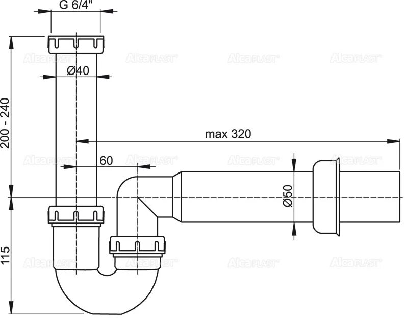
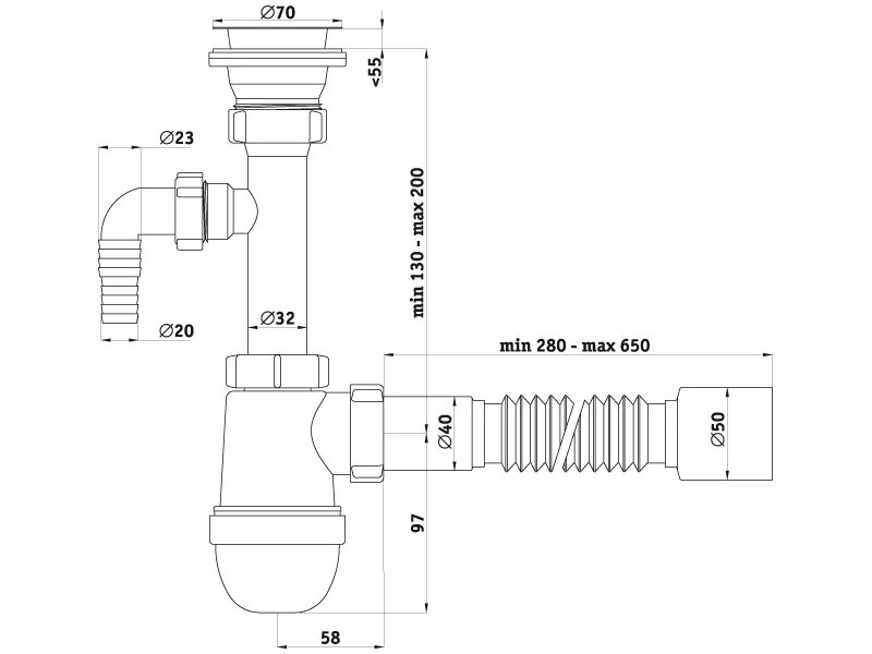
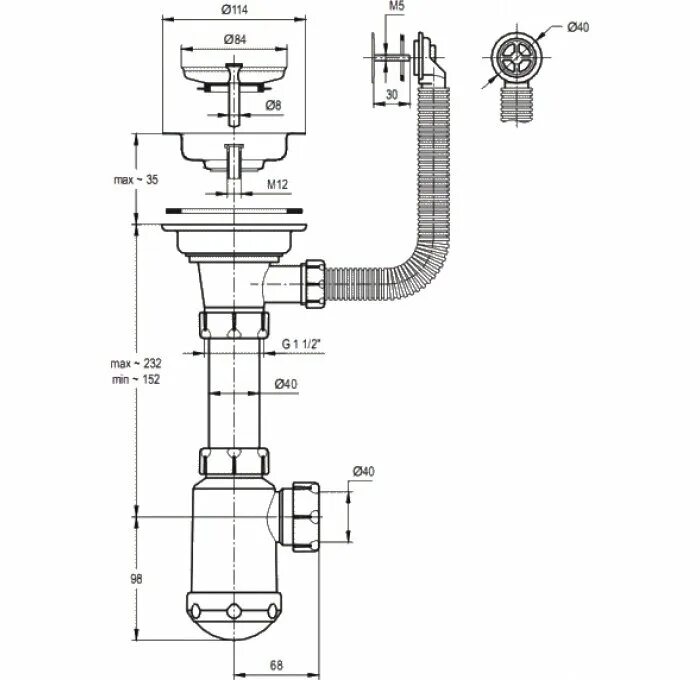
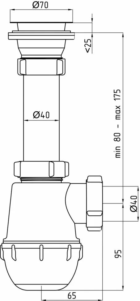
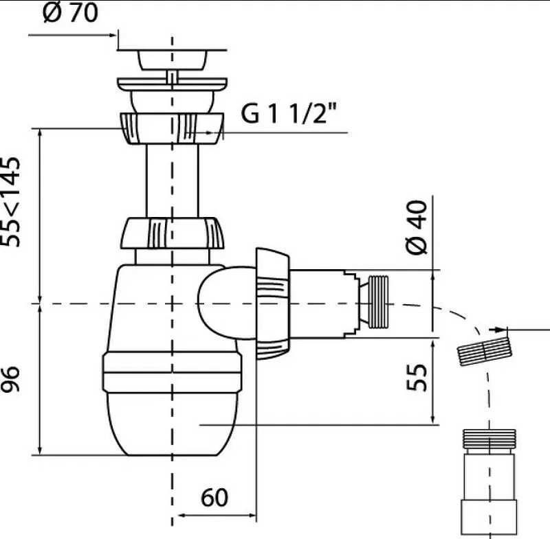
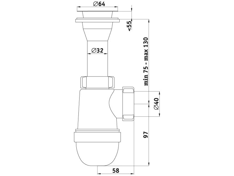
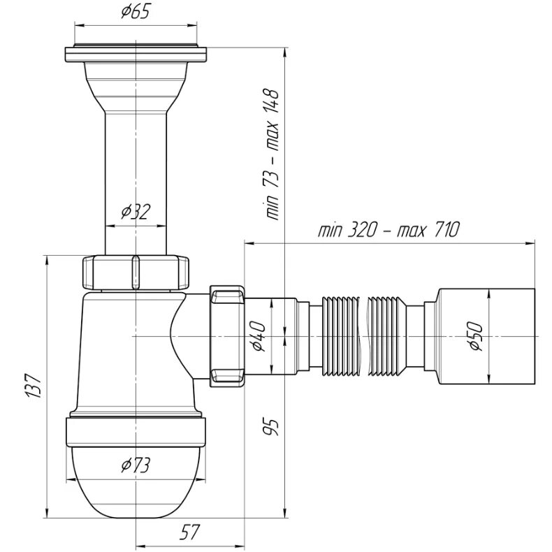
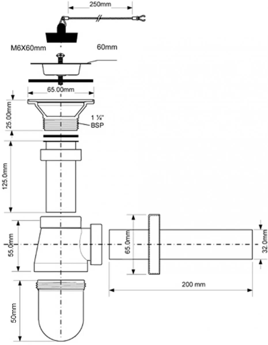
Размер выпуска сифона