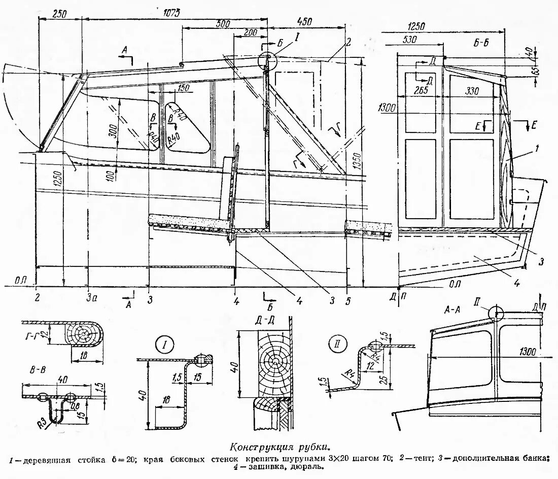
Размеры лодки прогресс 2