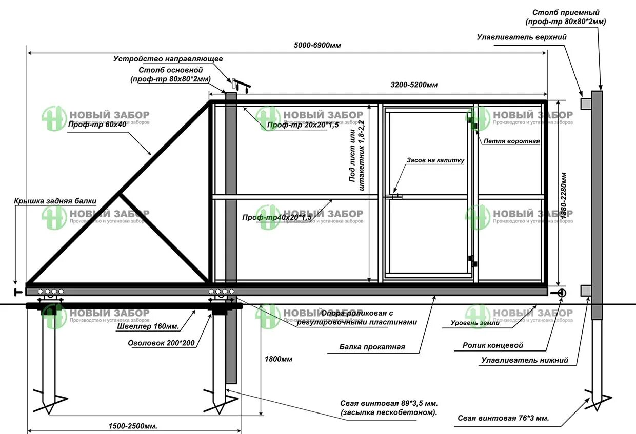
Размеры откатных ворот