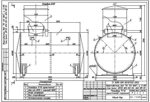
Резервуары форум