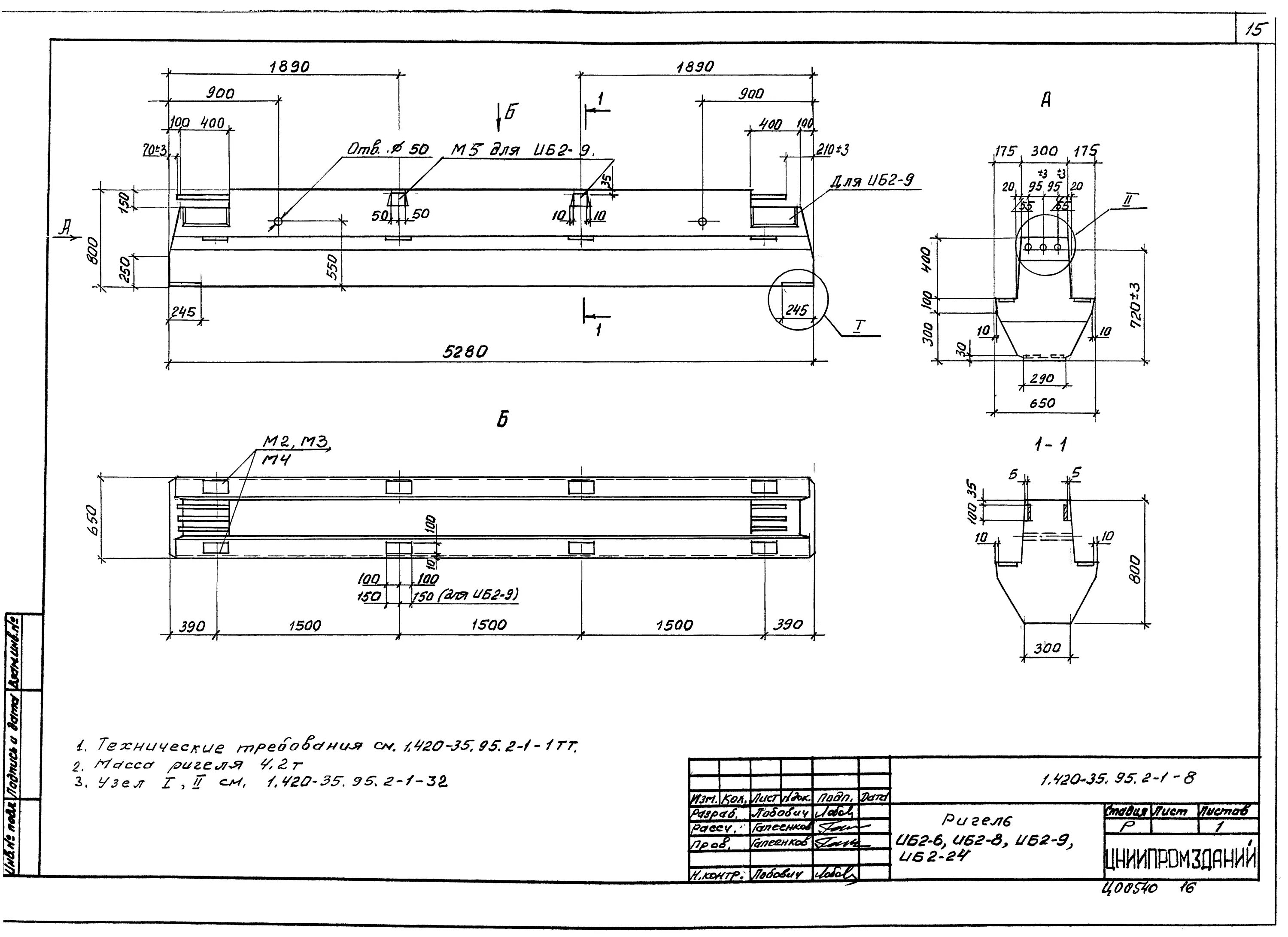
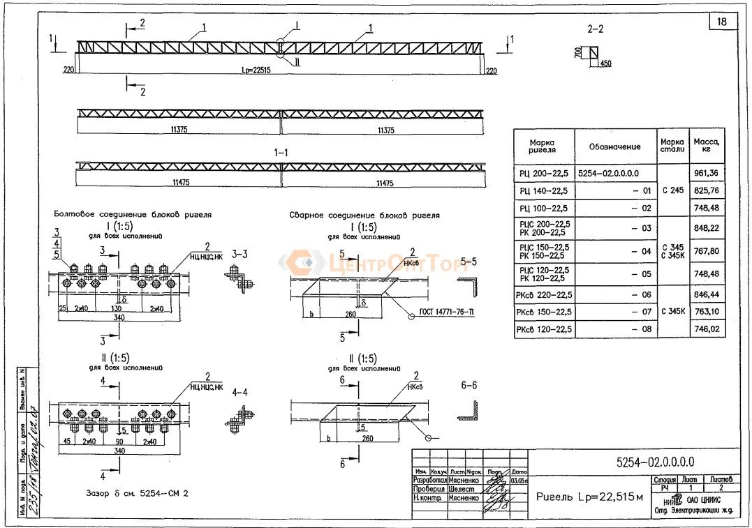
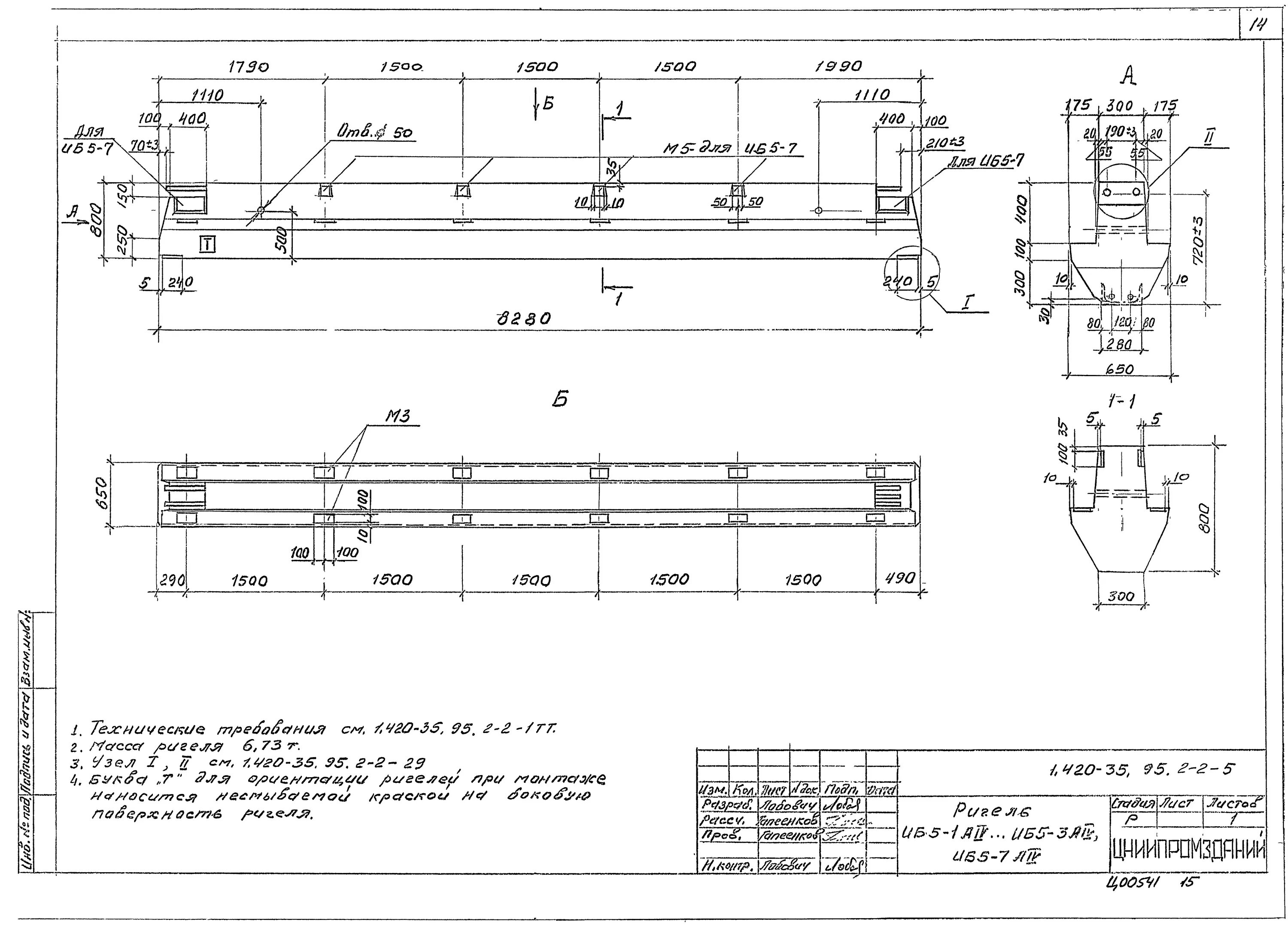
Ригель 2 м