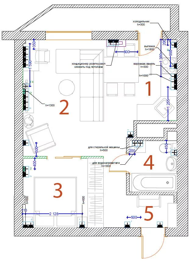
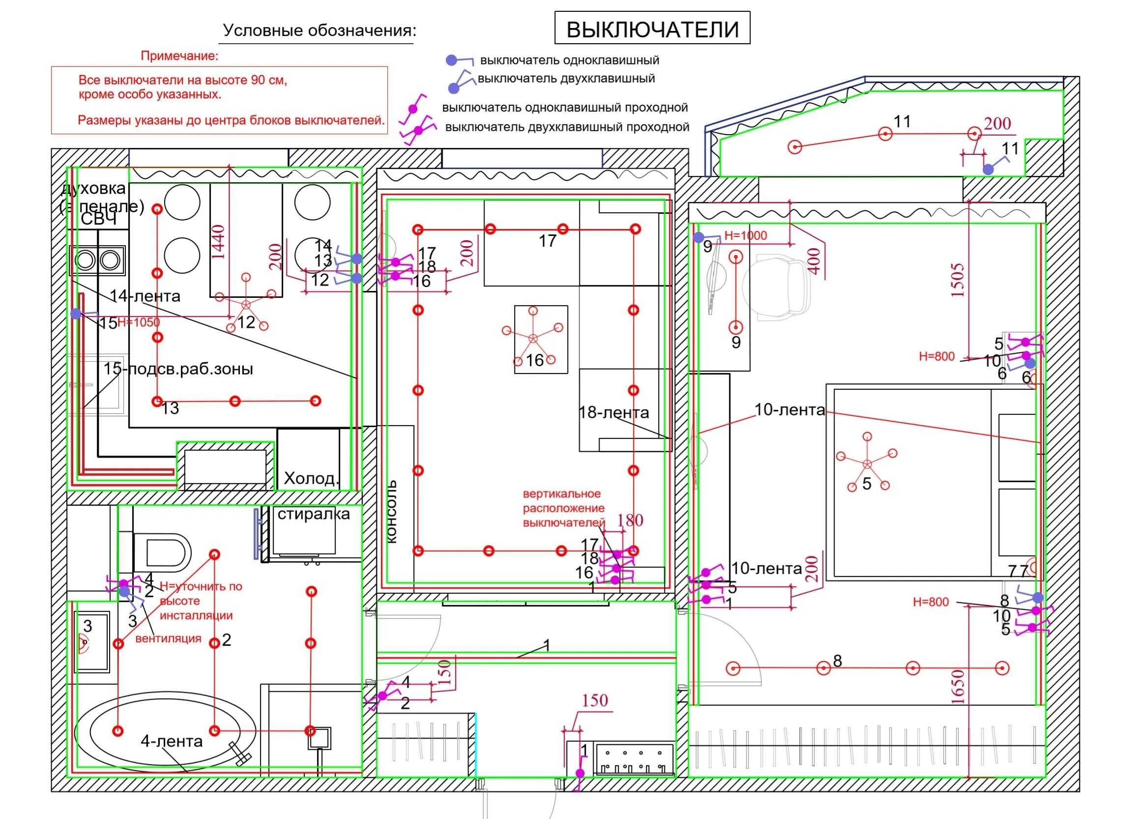
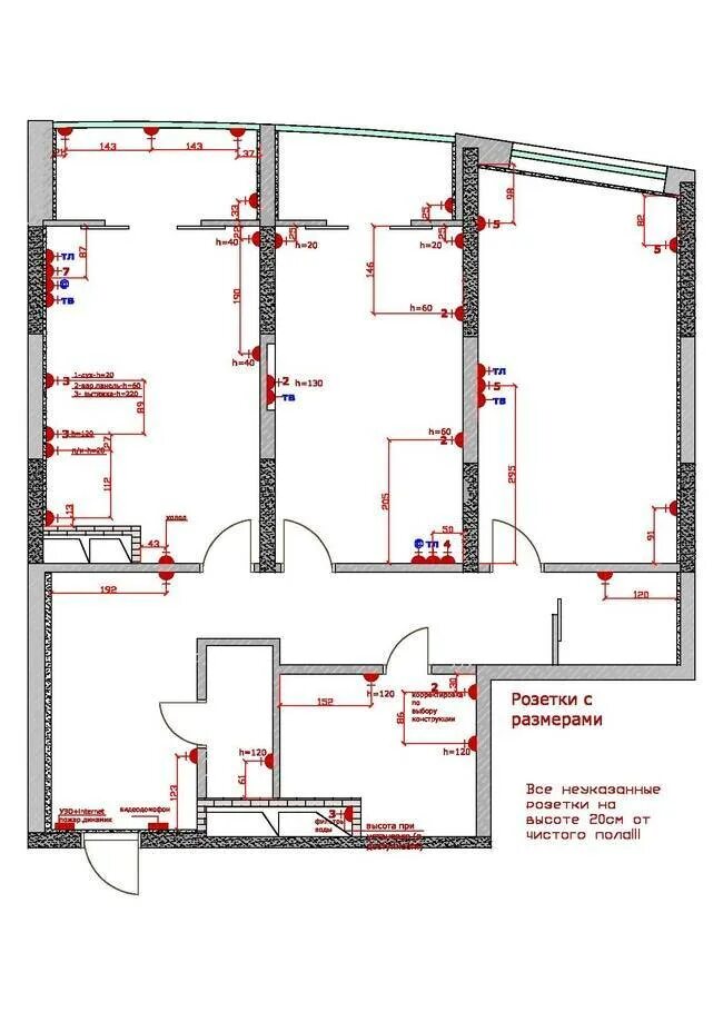
Розетки и выключатели в частном доме