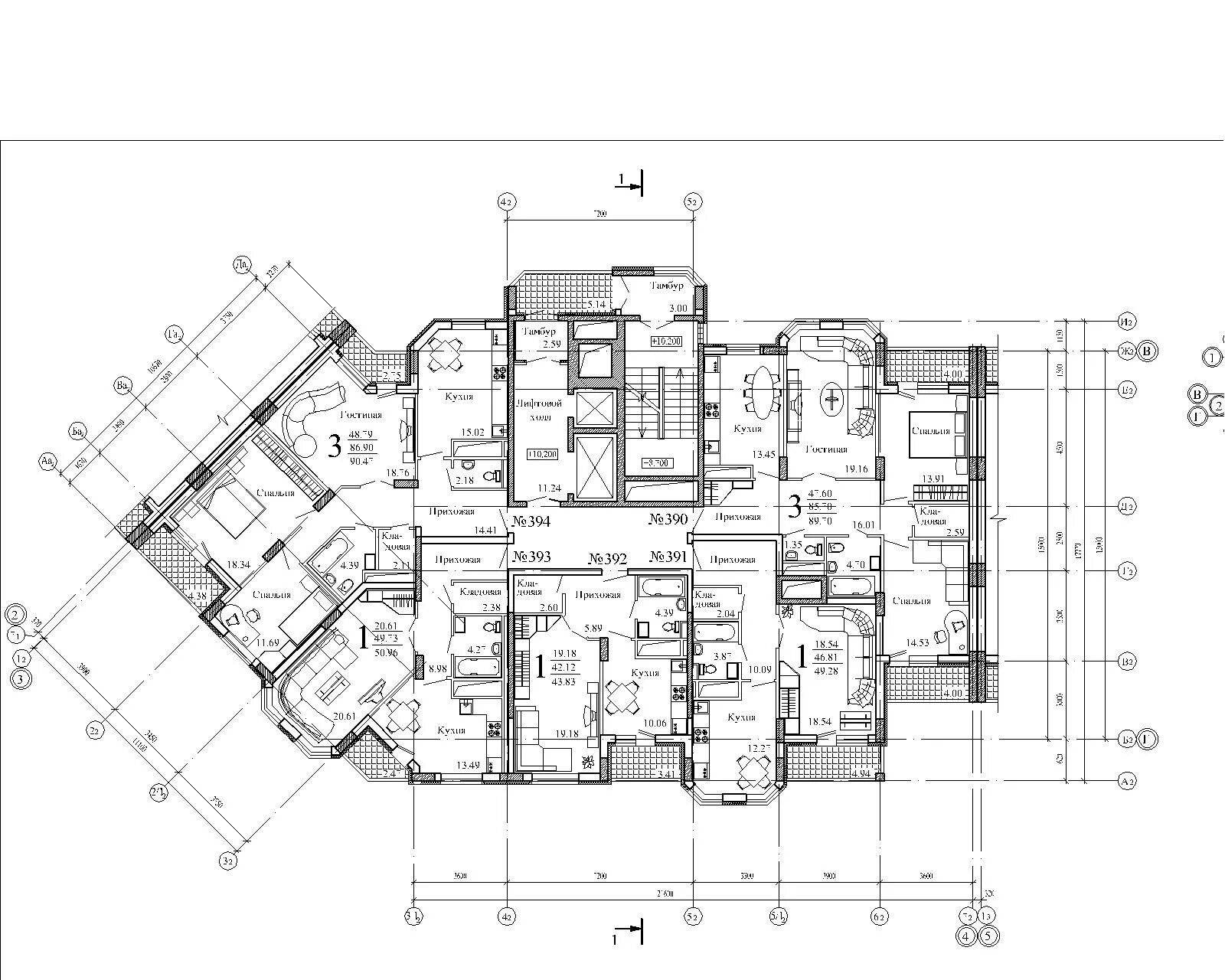
Секция здания