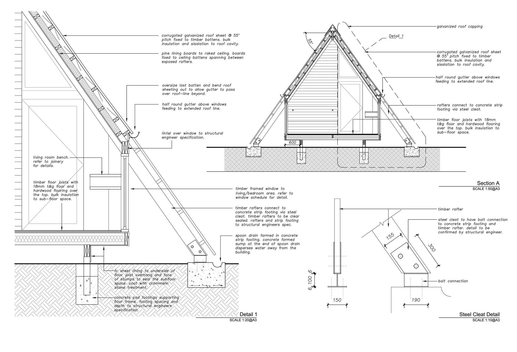
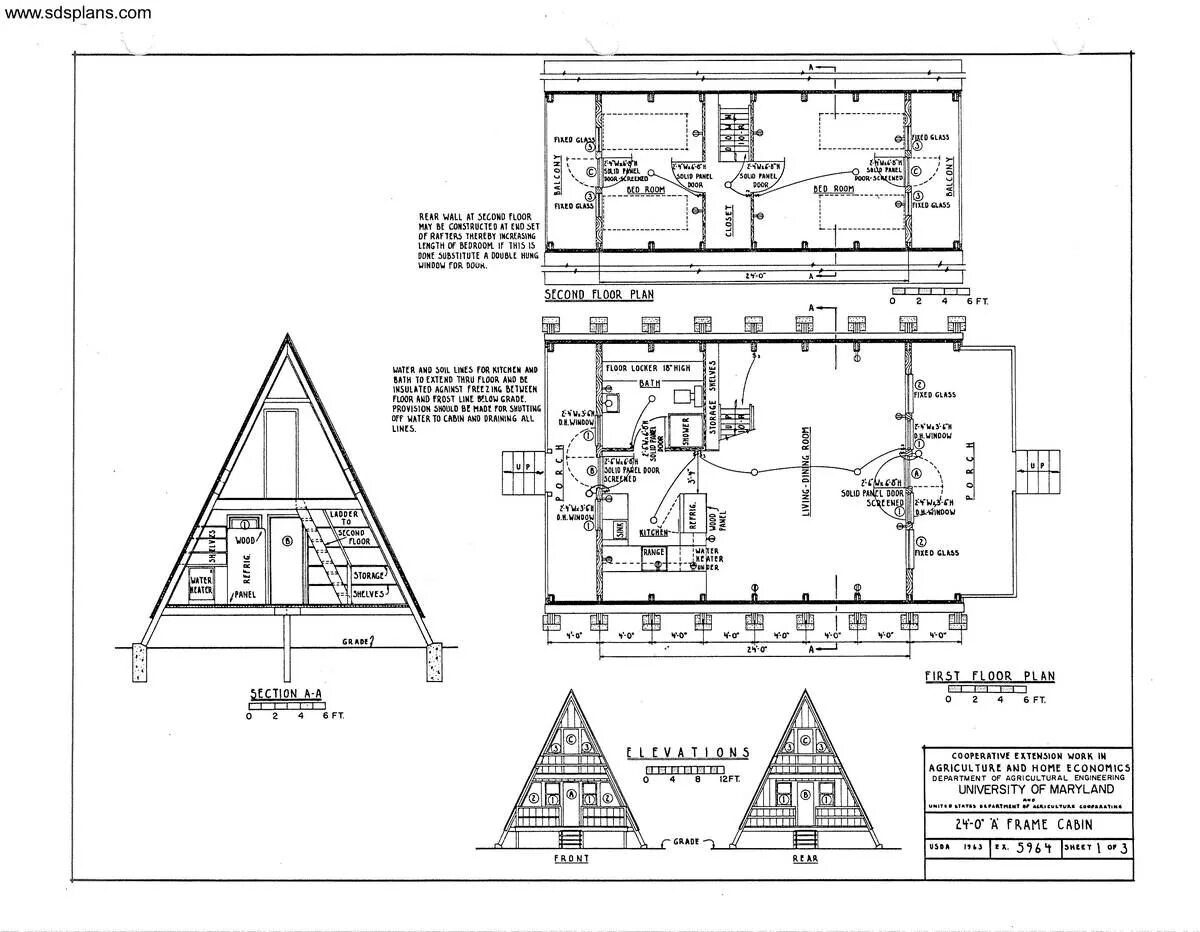
Шалаш проекты чертежи