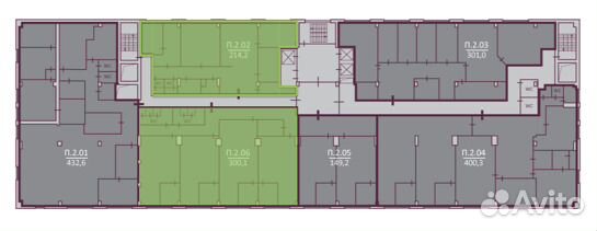
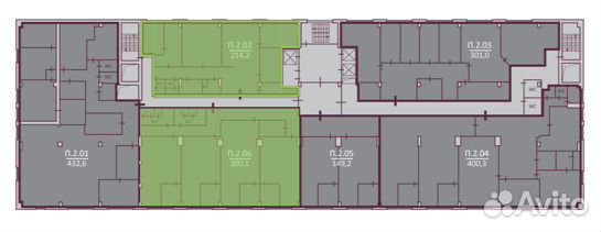
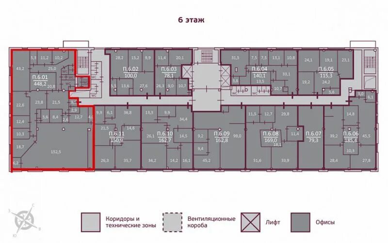
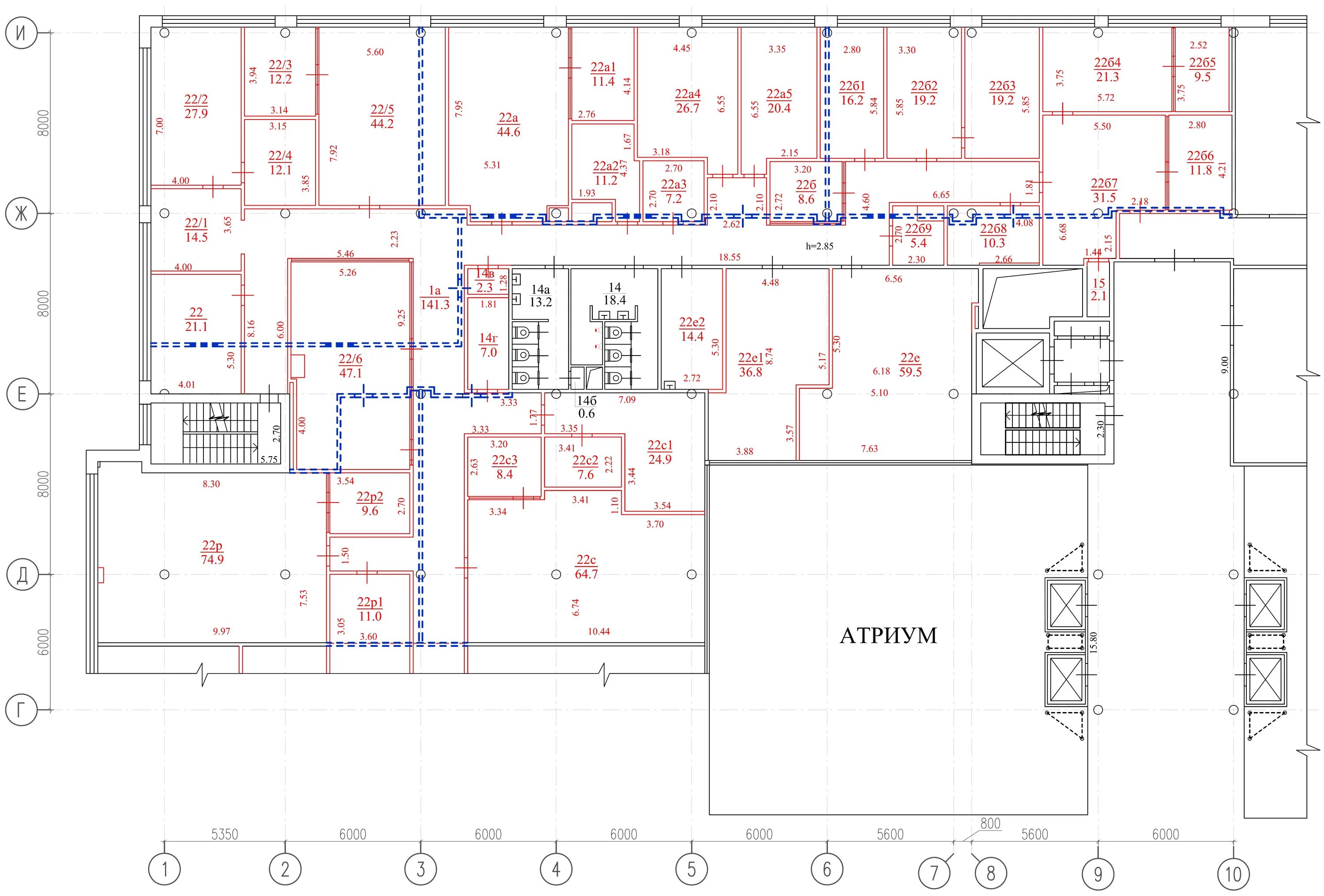
Схема барклая