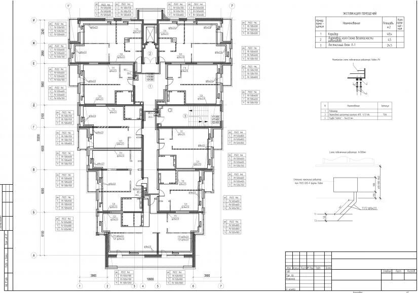
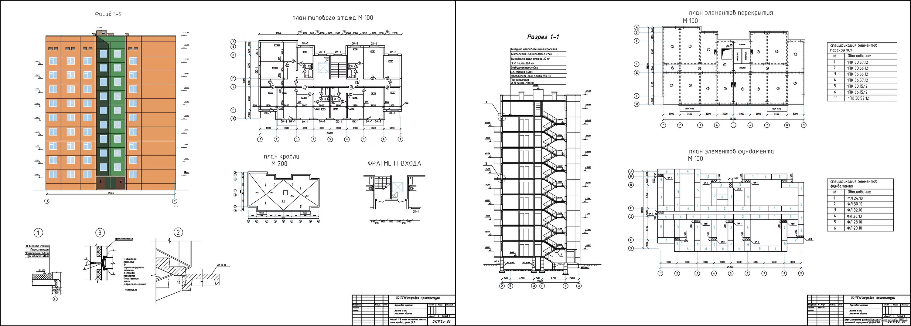
Схема дома 9 этажных