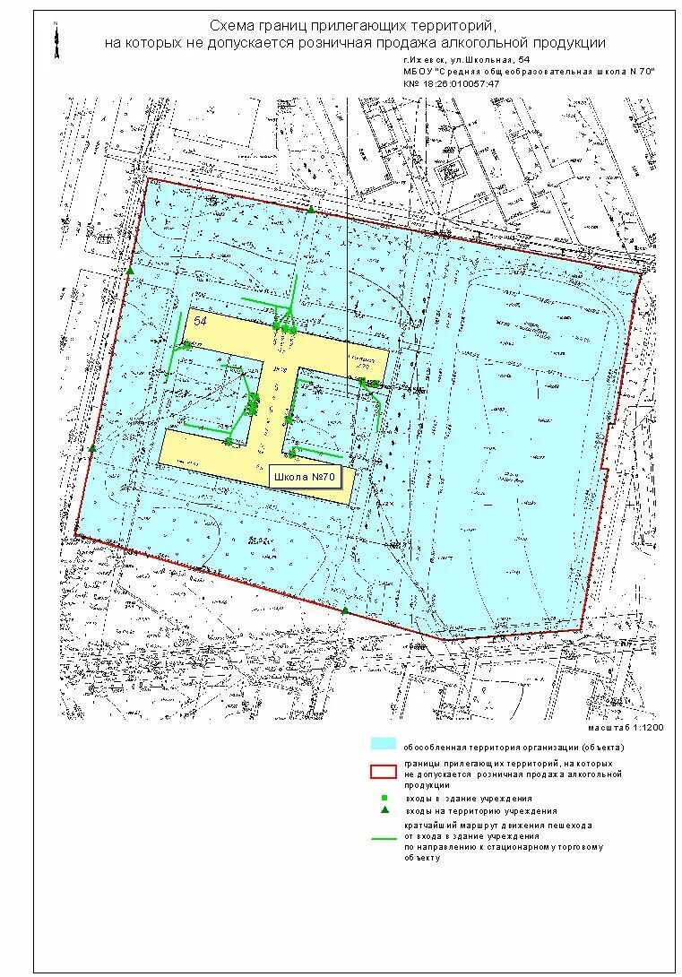
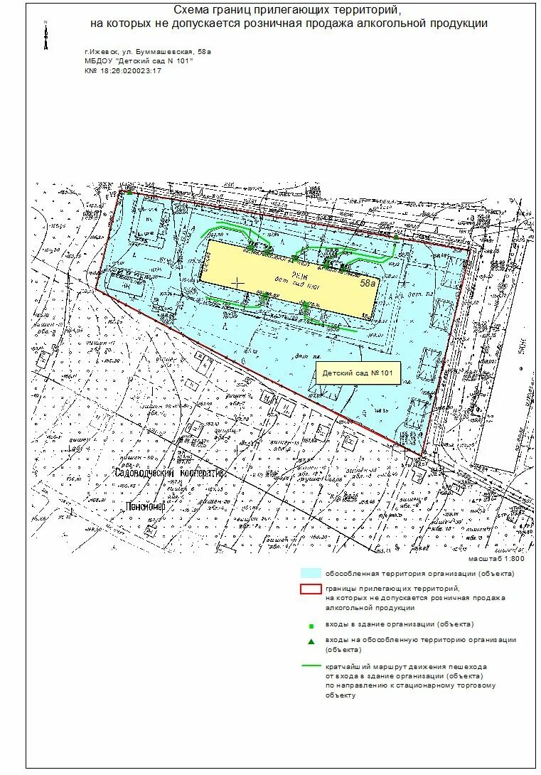
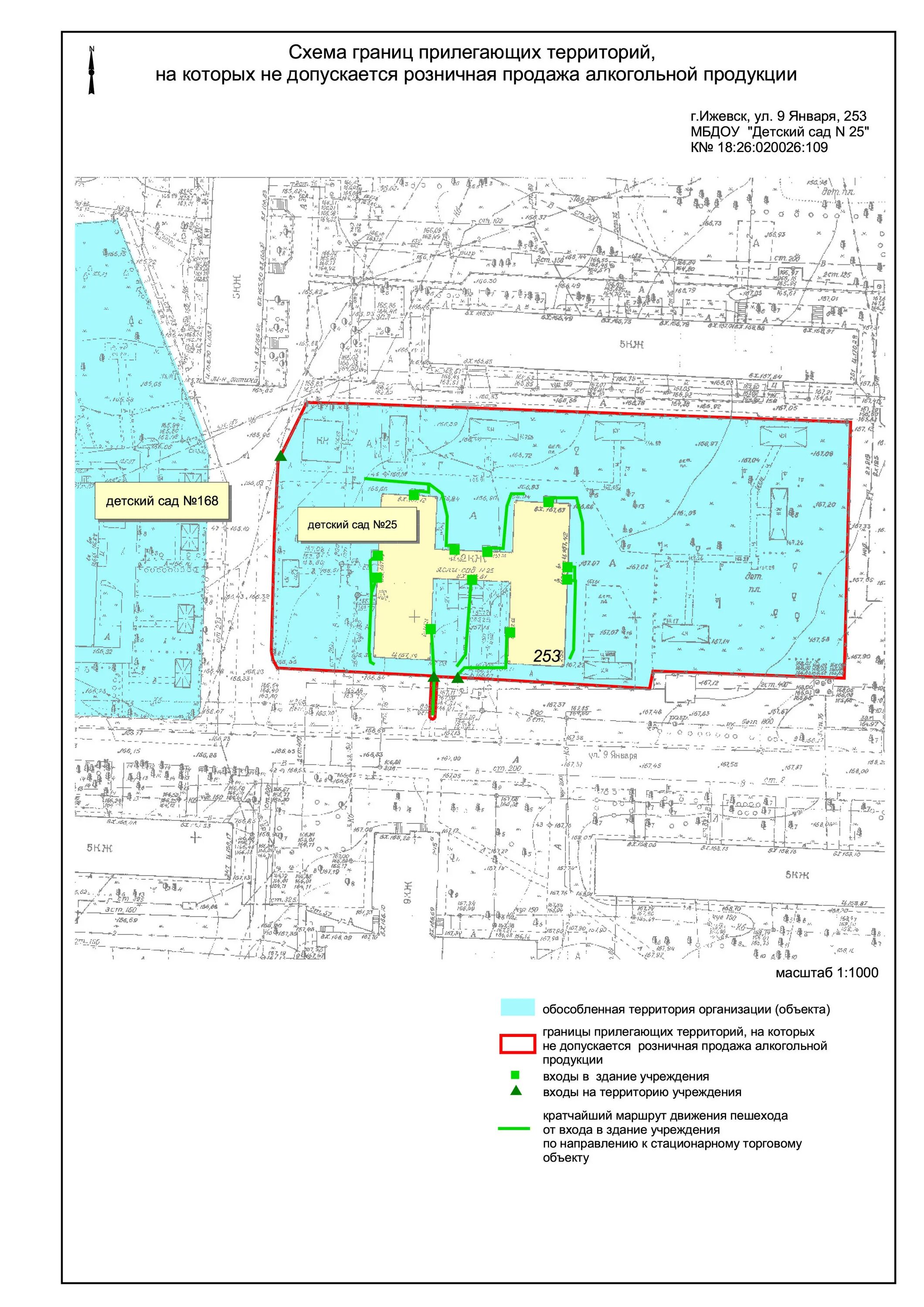
Схема границ