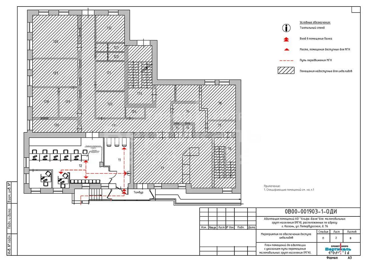
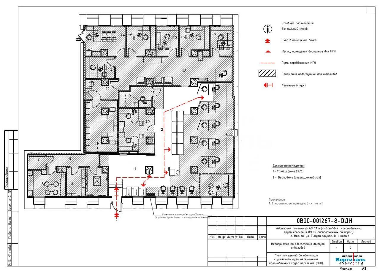
Схема одо