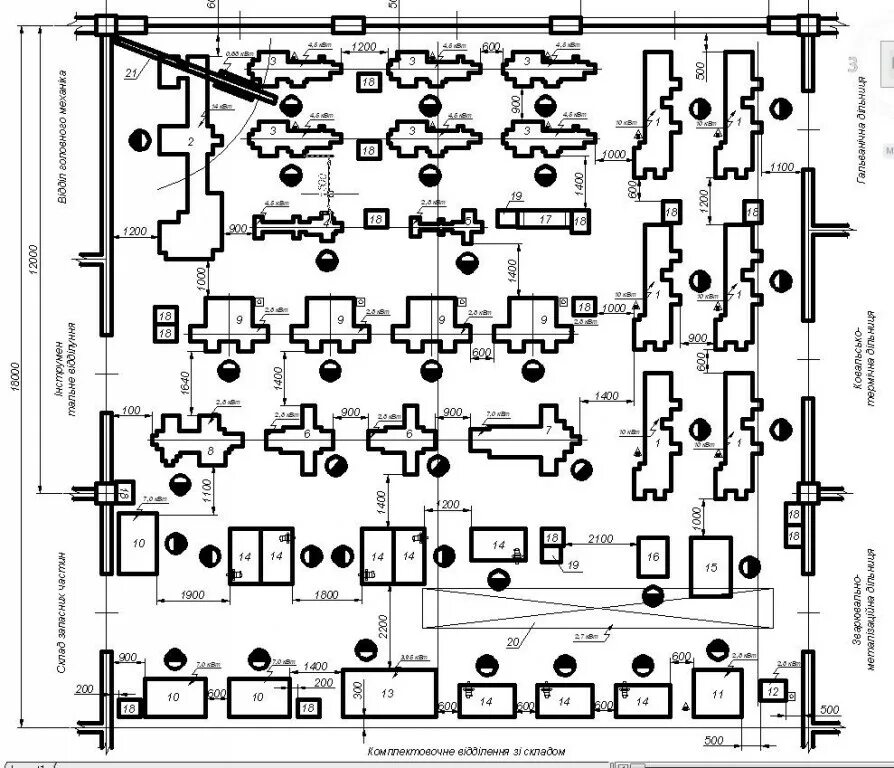
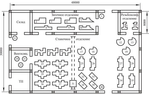
Схема расположения станков