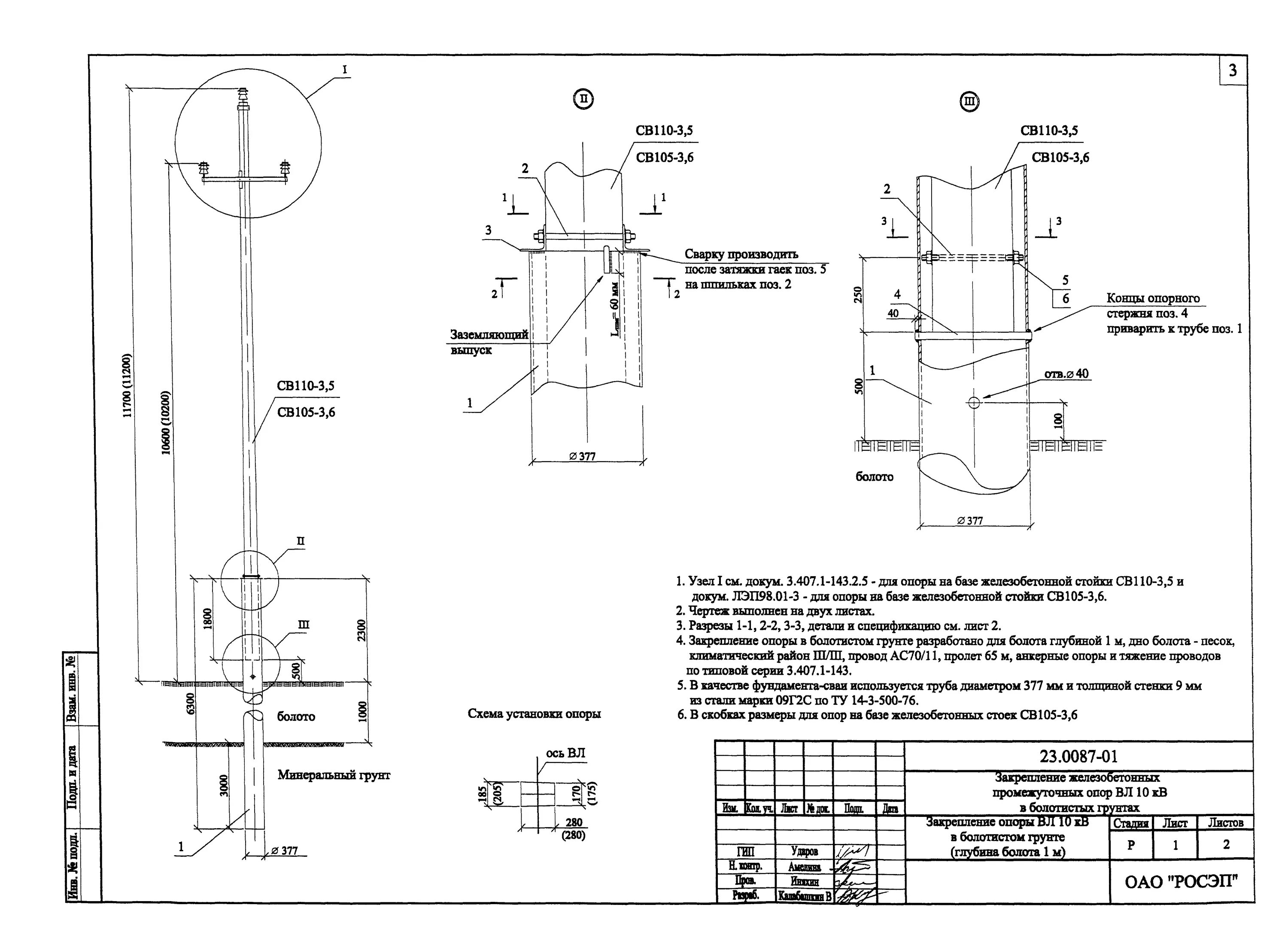
Схема столб