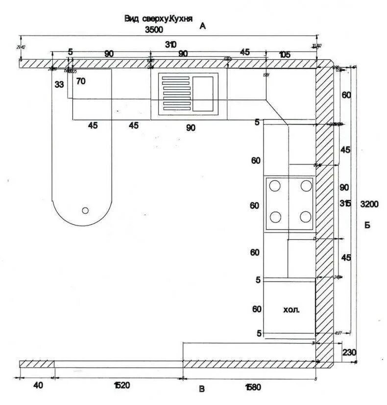
Схемы расположения кухни