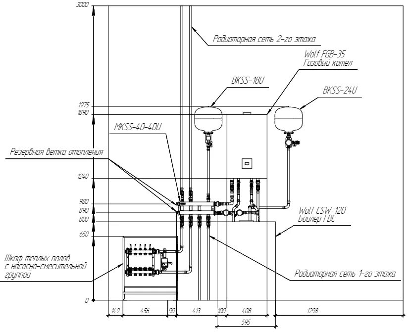
Схемы установки настенных газовых котлов