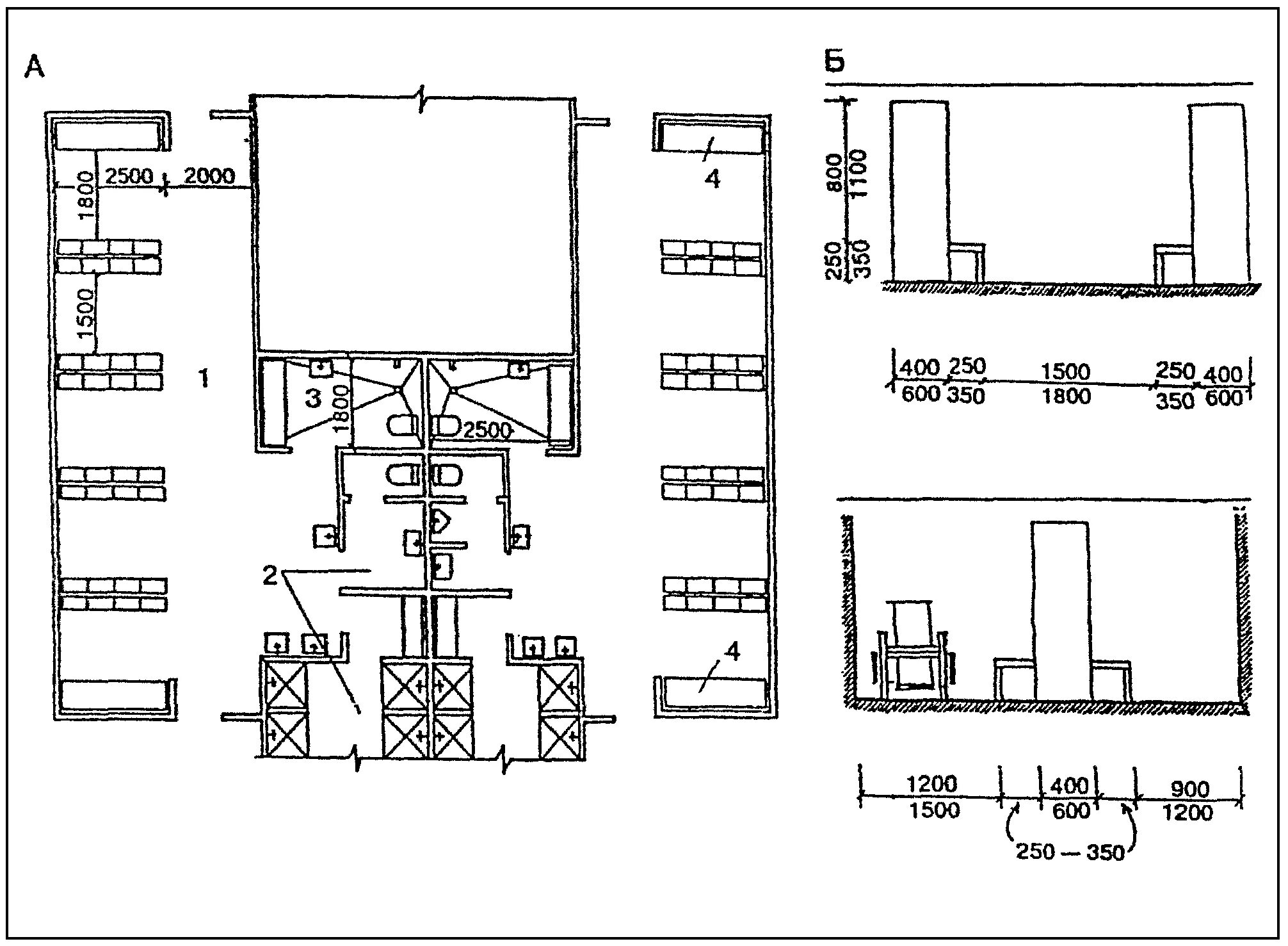
Ширина проходов в складском помещении