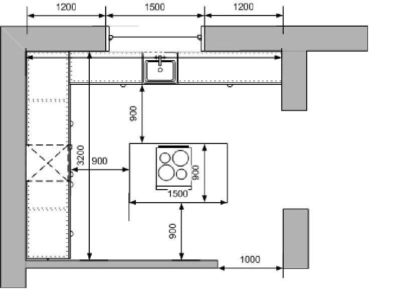
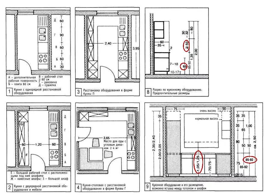
Ширина рабочего коридора