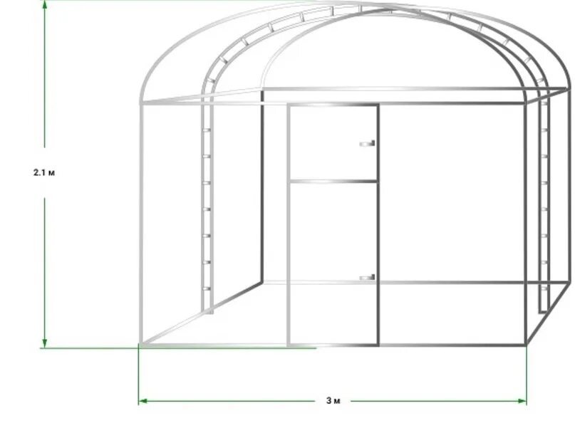
Ширина теплиц 2.5 м