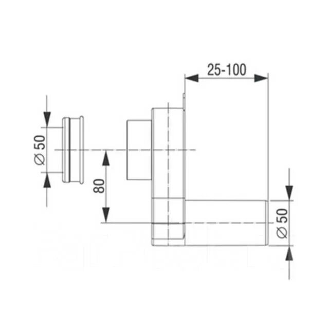
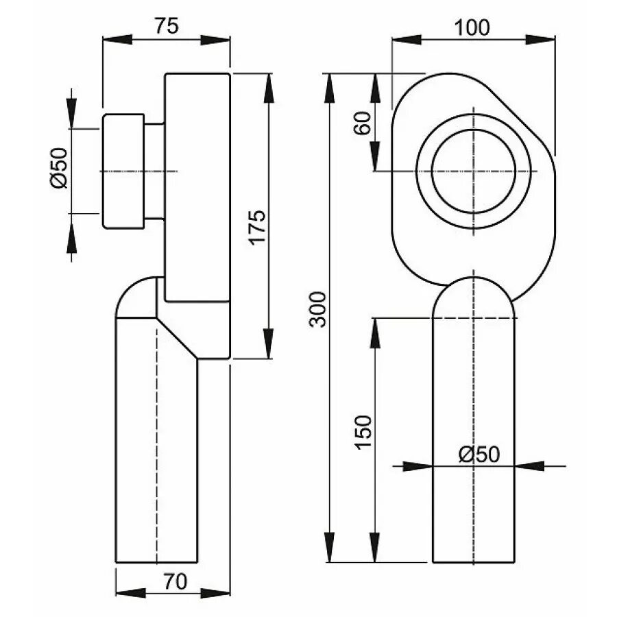
Сифон гала