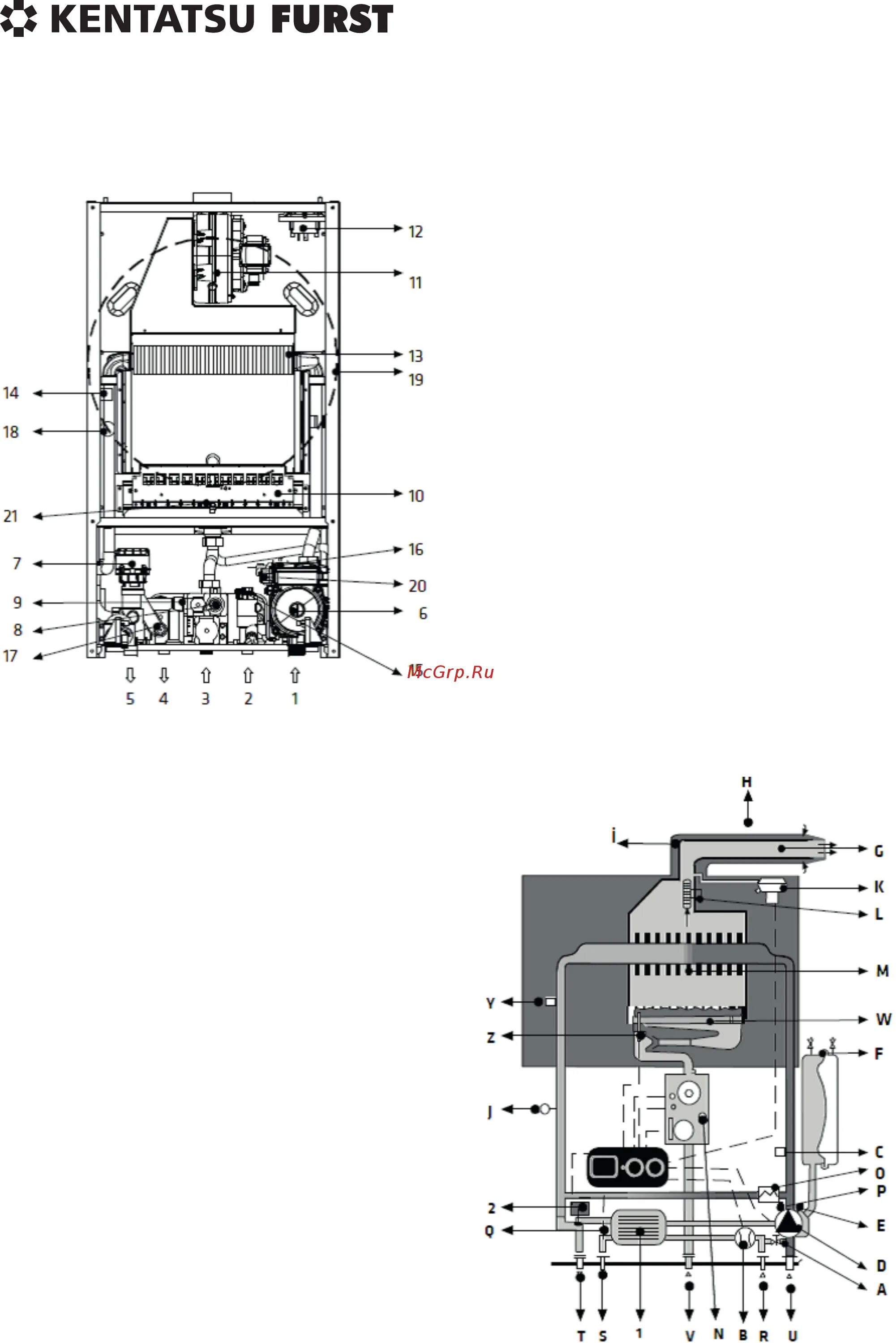
Smart 24 2csf