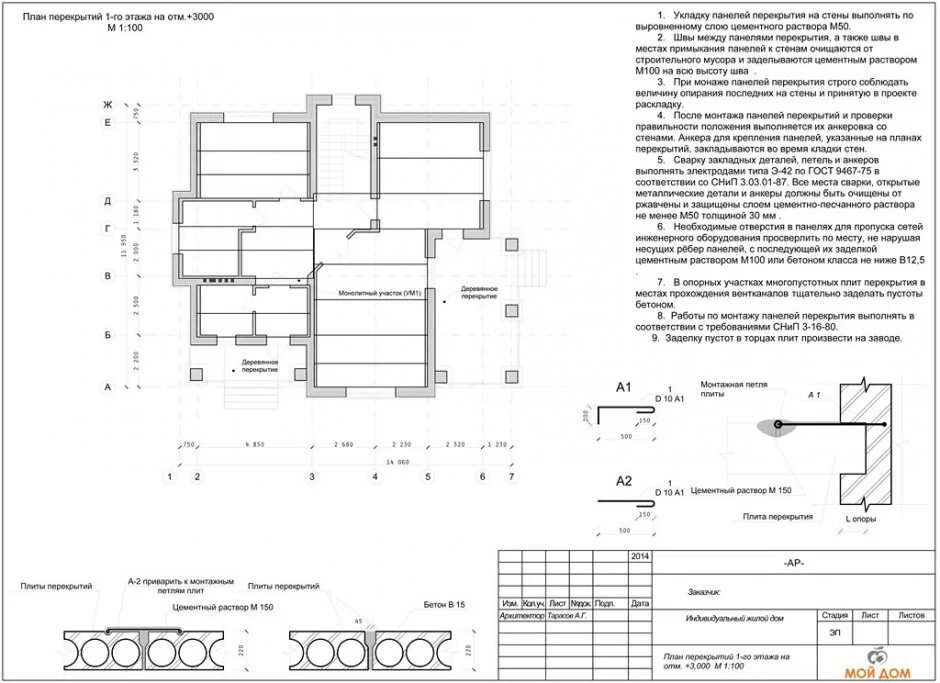
Снип монтаж