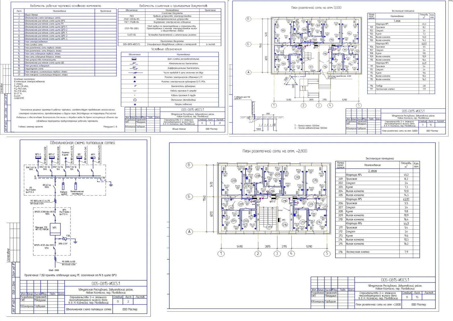
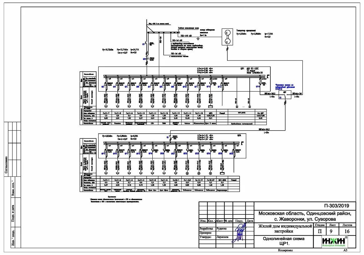
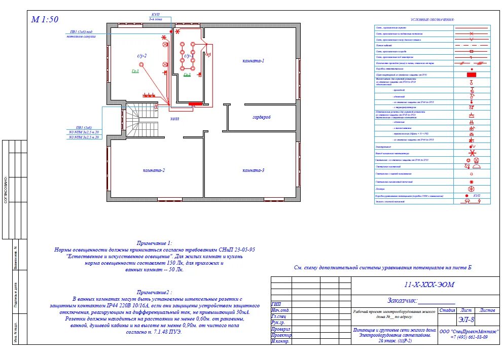
Сп электропроводка