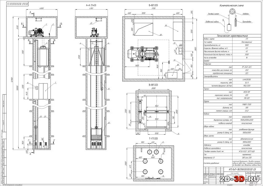
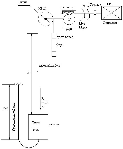
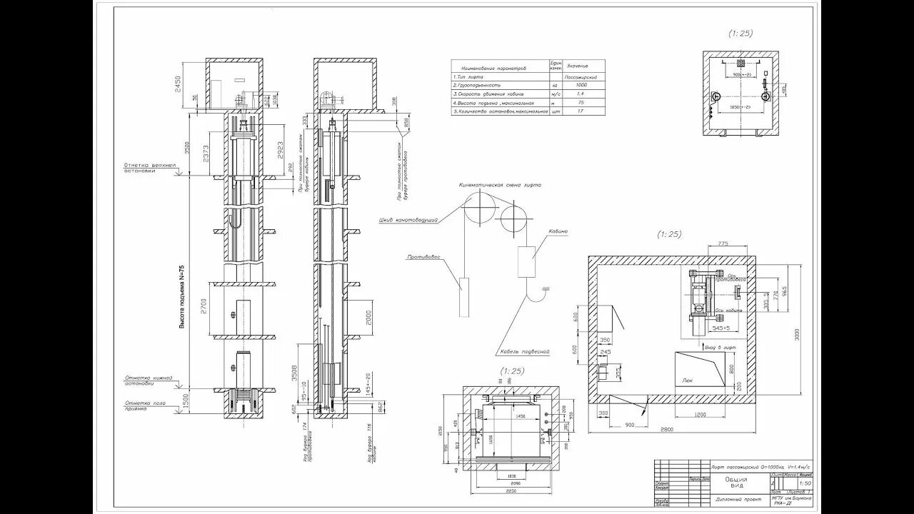
Способ увеличения развиваемой мощности грузовым лифтом