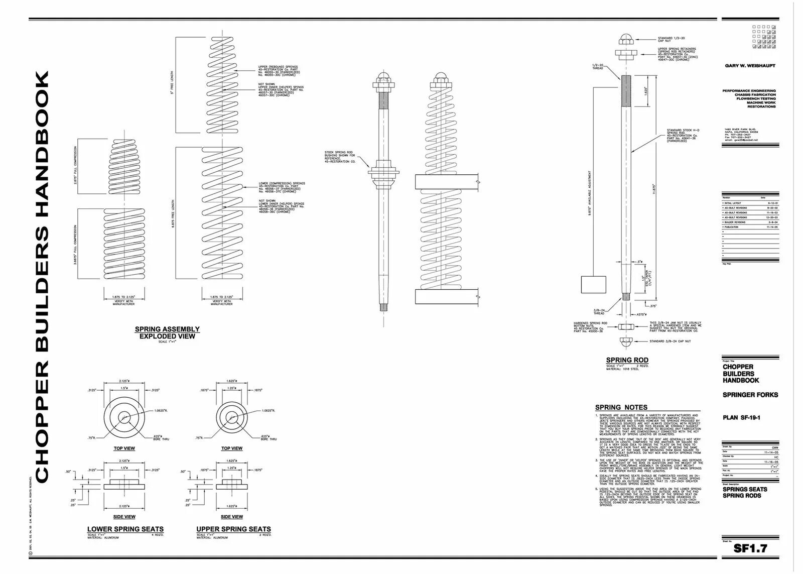
Springer x